Suze Groenewegstraat 78, Tiel | Beumer

Suze Groenewegstraat 78

4003 ZV, Tiel

Op zoek naar een appartement met zonnig balkon en recent vernieuwde keuken en badkamer? Welke is gelegen op loopafstand van een winkelcentrum? Wees welkom bij de Suze Groenewegstraat 78 te Tiel! Dit 3-kamer appartement op de eerste verdieping heeft 2

  • 64 m2
  • Label B
  • 4 kamer(s)

€ 275.000,- k.k. Bereken maandlasten

Bereken maandlasten
Heb je een hypotheek nodig?

Omschrijving

Op zoek naar een appartement met zonnig balkon en recent vernieuwde keuken en badkamer?
Welke is gelegen op loopafstand van een winkelcentrum?
Wees welkom bij de Suze Groenewegstraat 78 te Tiel!

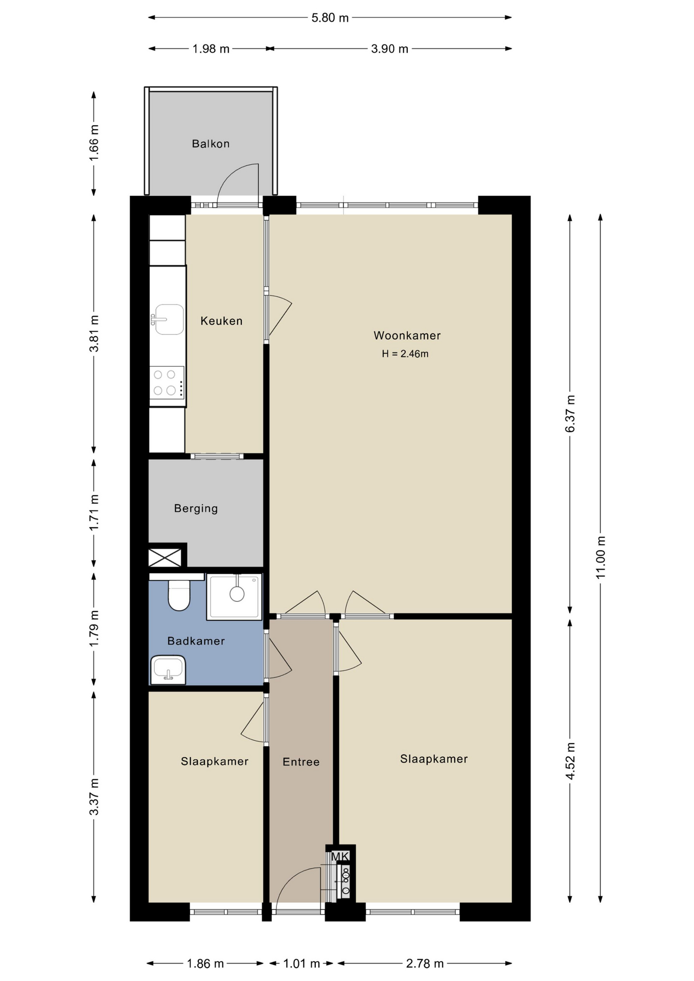
Dit 3-kamer appartement op de eerste verdieping heeft 2 slaapkamers, voldoende openbare parkeergelegenheid en een berging. Het appartement ligt in de geliefde woonwijk Rauwenhof nabij een kleinschalig buurtwinkelcentrum met alle basis voorzieningen.

Indeling:
Eigen entree, hal met meterkast en toegang naar de keuken en de woonkamer. De woonkamer en keuken zijn aan de terraszijde gelegen. In de keuken is ook de CV-ketel opgehangen.
De…

Op zoek naar een appartement met zonnig balkon en recent vernieuwde keuken en badkamer?
Welke is gelegen op loopafstand van een winkelcentrum?
Wees welkom bij de Suze Groenewegstraat 78 te Tiel!

Dit 3-kamer appartement op de eerste verdieping heeft 2 slaapkamers, voldoende openbare parkeergelegenheid en een berging. Het appartement ligt in de geliefde woonwijk Rauwenhof nabij een kleinschalig buurtwinkelcentrum met alle basis voorzieningen.

Indeling:
Eigen entree, hal met meterkast en toegang naar de keuken en de woonkamer. De woonkamer en keuken zijn aan de terraszijde gelegen. In de keuken is ook de CV-ketel opgehangen.
De woonkamer voelt heerlijk ruim aan door de grote raampartij. Het balkon is gelegen op het zonnige zuidwesten (middag- en avondzon).

Via de hal kun je naar de twee slaapkamers en de badkamer.
De badkamer is betegeld met een moderne tegel en voorzien van een inloop douche, vaste wastafel, toilet en de witgoedaansluitingen.

Locatie:
Het appartement bevindt zich in een net complex nabij een winkelcentrum. Hierdoor zijn alle voorzieningen op loopafstand te bereiken. Er is door de aanwezigheid van het winkelcentrum ook voldoende parkeergelegenheid. De stad en NS zijn binnen 5 minuten per fiets te bereiken.
De servicekosten bedragen € 112,02 per maand. Op de begane grond bevindt zich tevens een inpandig bereikbare berging.

Algemeenheden / bijzonderheden:
- 3-kamer appartement met zonnig balkon
- berging op begane grond
- voldoende parkeergelegenheid
- nabij winkelcentrum gelegen
- nabij NS - station en uitvalswegen
- ziekenhuis Rivierenland op loopafstand
- aanvaarding: in overleg.

BIJZONDERHEDEN TEN AANZIEN VAN DE TRANSACTIE
- In de koopovereenkomst worden extra artikelen opgenomen, hieronder een opsomming van de belangrijkste bepalingen. De model-koopovereenkomst die door verkoper wordt gebruikt, vindt u in uw MOVE account;
- Het object wordt geleverd in de staat waarin het zich op dit moment bevindt ('As is, Where is'), wat onder andere inhoudt dat het object wordt opgeleverd in de huidige gebruikte, bouwkundige, technische en milieukundige staat.
- Verkoper heeft zelf nooit gebruik gemaakt van de woning, om deze reden is er geen vragenlijst en lijst van zaken aan de documentatie toegevoegd.
- Verkoop onder voorbehoud van toestemming gemeente Tiel;
- De notariële eigendomsoverdracht van dit object dient plaats te vinden bij de daartoe aangewezen projectnotarissen: NL Notariaat te Etten-Leur in samenwerking met Hoffspoor notarissen. De volmacht voor de levering alsmede de hypotheekakte wordt getekend bij Koch & Compaijen te Utrecht.
- Indien er voordeel overdrachtsbelasting van toepassing is komt deze ten gunste van verkoper.

Interesse in deze woning? Kom gerust eens kijken samen met uw NVM aankoopmakelaar!

Lees verder

Kenmerken

  • Vraagprijs € 275.000,- k.k.
  • Aanvaarding In overleg
  • Bouwjaar 1986
  • Woonoppervlakte ca. 64 m2
  • Oppervlakte gebouwgebonden ca. 3 m2
  • Externe bergruimte ca. 3 m2
  • Slaapkamers 2
  • Inhoud ca. 197 m3
  • Energielabel B
  • Isolatie Dakisolatie, muurisolatie, vloerisolatie, dubbel glas
  • Verwarming Cv ketel
  • C.v.-ketel bouwjaar 2019
  • Voorzieningen Mechanische ventilatie, lift, natuurlijke ventilatie
  • Parkeerfaciliteiten Openbaar parkeren
  • Garage Geen garage
Meer kenmerken

In de buurt

Suze Groenewegstraat 78 • 4003 ZV • Tiel

      De buurt

      Leeftijd in wijk
      0 - 15 jaar
      15 - 25 jaar
      25-45 jaar
      45 - 65 jaar
      65+ jaar
      • 0 - 15 jaar (15.90%)
      • 15 - 25 jaar (12.24%)
      • 25 - 45 jaar (22.66%)
      • 45 - 65 jaar (33.13%)
      • 65+ jaar (16.08%)
      Geslacht
      • Mannen (49.48%)
      • Vrouwen (50.52%)
      Gezinnen met kinderen
      0 - 15 jaar
      15 - 25 jaar
      25-45 jaar
      • Met kinderen (40.09%)
      • Zonder kinderen (32.07%)
      • Éénpersoons huishoudens (27.84%)
      Aantal inwoners:

      8195

      Schaduwwijzer

      Media

      Plattegronden

      Ander aanbod