Louis Pasteurlaan 18, Vleuten | Beumer

Louis Pasteurlaan 18

3451 EJ, Vleuten

Ruime eengezinswoning gelegen aan de rustige en ruim opgezette Louis Pasteurlaan op loopafstand van de gezellige oude dorpskern Vleuten. Deze uitstekend onderhouden woning biedt een groot woonoppervlak van circa 127 m² én een extra aangebouwde tuinkamer/serre van circa

  • 127 m2
  • 155 m2
  • Label B
  • 6 kamer(s)

€ 525.000,- k.k. Bereken maandlasten

Bereken maandlasten
Heb je een hypotheek nodig?

Omschrijving

Ruime eengezinswoning gelegen aan de rustige en ruim opgezette Louis Pasteurlaan op loopafstand van de gezellige oude dorpskern Vleuten.

Deze uitstekend onderhouden woning biedt een groot woonoppervlak van circa 127 m² én een extra aangebouwde tuinkamer/serre van circa 16,5m2. en staat op een mooi perceel eigen grond van 155m². Pluspunten van deze energiezuinige woning met energielabel B zijn de lichte doorzon woonkamer met openslaande tuindeuren, vier grote slaapkamers, separate werkkamer, de kunststof kozijnen met HR beglazing rondom, de jonge HR-combiketel en de aangebouwde en in aluminium uitgevoerde tuinkamer/serre met glazen schuifdeuren naar de modern aangelegde achtertuin.

De locatie is perfect…

Ruime eengezinswoning gelegen aan de rustige en ruim opgezette Louis Pasteurlaan op loopafstand van de gezellige oude dorpskern Vleuten.

Deze uitstekend onderhouden woning biedt een groot woonoppervlak van circa 127 m² én een extra aangebouwde tuinkamer/serre van circa 16,5m2. en staat op een mooi perceel eigen grond van 155m². Pluspunten van deze energiezuinige woning met energielabel B zijn de lichte doorzon woonkamer met openslaande tuindeuren, vier grote slaapkamers, separate werkkamer, de kunststof kozijnen met HR beglazing rondom, de jonge HR-combiketel en de aangebouwde en in aluminium uitgevoerde tuinkamer/serre met glazen schuifdeuren naar de modern aangelegde achtertuin.

De locatie is perfect met de oude dorpskern van Vleuten om de hoek alsook het treinstation van Vleuten. Ook het Maximapark, de Haarrijnse Plassen en het prachtige buitengebied rondom Kasteel De Haar zijn op fietsafstand gelegen. In Vleuten-dorp is altijd wat te beleven, denk aan het gezellige Bourgondisch Vleuten en het Tiroler Oktoberfest Festijn welke elk jaar worden georganiseerd. Daarnaast zijn er in de directe omgeving voldoende scholen en kinderdagverblijven, sportvoorzieningen, bushalte en treinstation, uitvalswegen en snelwegen A12/A2.

Kortom, een fijn gezinswoonhuis op uitstekende locatie!

Indeling

Begane grond:
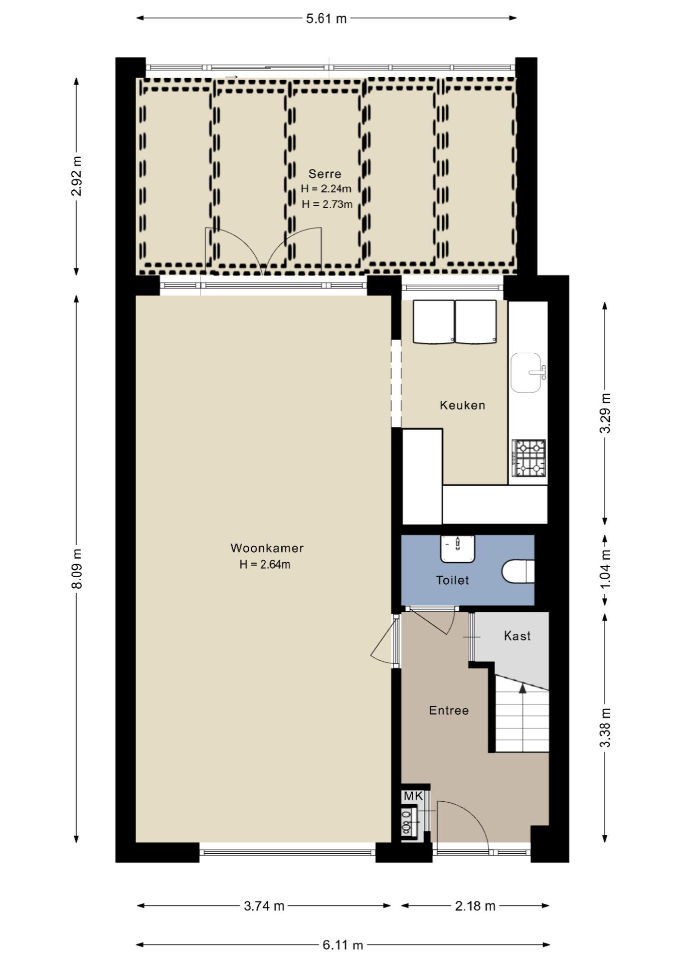
Entree, ruime hal met laminaatvloer, glad gestucte wanden -en plafond, meterkast, verzorgde toiletruimte met hangend closet en fonteintje, trapkast, trapopgang en toegang tot de woonkamer.

De grote doorzon woonkamer van ruim 30m² is voorzien van een laminaatvloer en gestucte wanden en is heerlijk licht door de aanwezigheid van de grote raampartijen aan de voor – én achterzijde. Aan de voorzijde is er vrij zicht op de eigen, modern aangelegde voortuin en de brede laan en aan de achterzijde bieden de openslaande deuren toegang tot de aangebouwde tuinkamer/serre van circa 16,5m². Deze is in aluminium uitgevoerd en voorzien van ingebouwde verlichting, elektra en glazen schuifdeuren naar de tuin.

Via een toog in de woonkamer is de, aan de achterzijde gelegen, halfopen keuken toegankelijk. De keuken is voorzien van een standaard keukenblok in U-opstelling met gaskookplaat, oven, RVS-afzuigkap en veel werk- en kastruimte.

1e verdieping:
Overloop met vinylvloer, glad gestucte wanden -en plafond, verzorgde toiletruimte en trapopgang naar de 2e verdieping.

De 1e verdieping beschikt over 3 slaapkamers met afmetingen van respectievelijk circa 17m², 17m² en 7,5m, die alle zijn voorzien van kunststof kozijnen met HR beglazing en draai-/kiepramen. De twee grootste kamers beschikken allebei over een vaste kastenwand.

De keurige badkamer is geheel en voorzien van een douchecabine met thermostaatkraan, wastafel met onderkast en kunststof raampartij.

2e verdieping:
Voorzolder met vinylvloer en structuurverfwanden, C.V. opstelling en bergruimte achter de knieschotten.

Op de 2e verdieping tref je daarnaast een separate werk-/slaapkamer aan van circa 5m² alsmede een grote slaapkamer van circa 16m². Ook deze kamers zijn voorzien van kunststof kozijnen en de grootste kamer heeft tevens een wastafel en twee vaste bergkasten.

Tuin:
De keurige en ruime voortuin is voorzien van moderne bestrating en een border met vaste beplanting alsmede een zonnescherm.

De achtertuin is modern aangelegd met strakke bestrating en grote aluminium tuinkamer/serre. Achterin de tuin staat de ruime stenen berging van circa 14,5m², die is voorzien van elektra en een deur naar de achtergelegen poort.

Bijzonderheden:
- Bouwjaar 1968;
- Energielabel B;
- Woonoppervlakte circa 127m² plus tuinkamer van circa 16,5m²;
- Perceeloppervlakte 155 m²;
- Zeer diepe achtertuin op het noorden;
- Lichte doorzonwoonkamer;
- 4 ruime slaapkamers plus kleinere werk-/slaapkamer;
- Geheel voorzien van kunststof kozijnen met HR-glas;
- Woningbrede dakkapel op de tweede verdieping;
- Intergas Kompakt HRE combiketel van 2021;
- Uitstekende ligging in kindvriendelijke met alle gewenste voorzieningen nabij.

Oplevering:
In overleg, kan desgewenst snel!

Lees verder

Kenmerken

  • Vraagprijs € 525.000,- k.k.
  • Aanvaarding In overleg
  • Type Tussenwoning
  • Bouwjaar 1968
  • Woonoppervlakte ca. 127 m2
  • Oppervlakte gebouwgebonden ca. 16 m2
  • Externe bergruimte ca. 14 m2
  • Slaapkamers 5
  • Inhoud ca. 504 m3
  • Perceeloppervlakte ca. 155 m2
  • Ligging tuin Noordoost
  • Energielabel B
  • Isolatie Dakisolatie, muurisolatie, vloerisolatie, hr glas
  • Verwarming Cv ketel
  • C.v.-ketel bouwjaar 2021
  • Voorzieningen Tv kabel
  • Parkeerfaciliteiten Openbaar parkeren
  • Garage Geen garage
Meer kenmerken

In de buurt

Louis Pasteurlaan 18 3451 EJ Vleuten

      De buurt

      Leeftijd in wijk
      0 - 15 jaar
      15 - 25 jaar
      25-45 jaar
      45 - 65 jaar
      65+ jaar
      • 0 - 15 jaar (21.20%)
      • 15 - 25 jaar (9.63%)
      • 25 - 45 jaar (26.93%)
      • 45 - 65 jaar (26.14%)
      • 65+ jaar (16.11%)
      Geslacht
      • Mannen (48.72%)
      • Vrouwen (51.28%)
      Gezinnen met kinderen
      0 - 15 jaar
      15 - 25 jaar
      25-45 jaar
      • Met kinderen (41.56%)
      • Zonder kinderen (29.46%)
      • Éénpersoons huishoudens (28.98%)
      Aantal inwoners:

      10120

      Schaduwwijzer

      Media

      Plattegronden

      Ander aanbod