Kolland 17, Vleuten | Beumer

Kolland 17

3452 NM, Vleuten

Luxe, stijlvol en royaal wonen in Oud-Hollandse sfeer met tuin op het zuidwesten! Welkom aan Kolland 17 in Vleuten: een instapklare, smaakvol afgewerkte en royaal uitgebouwde woning in de geliefde wijk De Hoven. Dit unieke woonhuis combineert hoogwaardige afwerking met

  • 158 m2
  • 152 m2
  • Label A
  • 6 kamer(s)

€ 785.000,- k.k. Bereken maandlasten

Bereken maandlasten
Heb je een hypotheek nodig?

Omschrijving

Luxe, stijlvol en royaal wonen in Oud-Hollandse sfeer met tuin op het zuidwesten!

Welkom aan Kolland 17 in Vleuten: een instapklare, smaakvol afgewerkte en royaal uitgebouwde woning in de geliefde wijk De Hoven. Dit unieke woonhuis combineert hoogwaardige afwerking met energiezuinig comfort (energielabel A en 14 zonnepanelen), een diepe, zonnige tuin op het zuidwesten én een rustige ligging aan een doodlopende straat.

De woning is in 2009 gebouwd op 152 m² eigen grond en recentelijk compleet gemoderniseerd met oog voor detail. Met een woonoppervlakte van maar liefst 158 m², vijf volwaardige slaapkamers, luxe badkamer, moderne keuken en diverse extra’s zoals…

Luxe, stijlvol en royaal wonen in Oud-Hollandse sfeer met tuin op het zuidwesten!

Welkom aan Kolland 17 in Vleuten: een instapklare, smaakvol afgewerkte en royaal uitgebouwde woning in de geliefde wijk De Hoven. Dit unieke woonhuis combineert hoogwaardige afwerking met energiezuinig comfort (energielabel A en 14 zonnepanelen), een diepe, zonnige tuin op het zuidwesten én een rustige ligging aan een doodlopende straat.

De woning is in 2009 gebouwd op 152 m² eigen grond en recentelijk compleet gemoderniseerd met oog voor detail. Met een woonoppervlakte van maar liefst 158 m², vijf volwaardige slaapkamers, luxe badkamer, moderne keuken en diverse extra’s zoals airconditioning, vloerverwarming en een sfeervolle veranda, biedt deze woning alles voor wie op zoek is naar comfort en klasse.

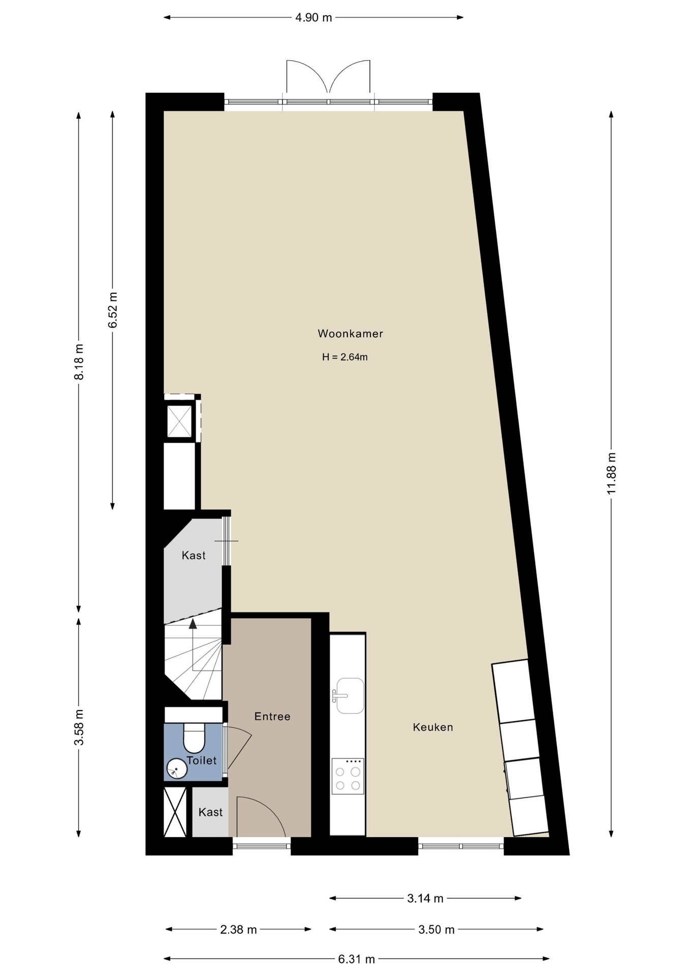
Indeling:

Begane grond:
Bij binnenkomst valt direct de stijlvolle afwerking op: glad gestucte wanden en plafonds, een pvc-vloer in Hongaarse punt met vloerverwarming, en een luxe toiletruimte. Via een stoere stalen deur betreedt u de riante, uitgebouwde woonkamer van ruim 40 m². De hoge ramen en openslaande deuren zorgen voor veel lichtinval en een directe verbinding met de tuin. Het op maat gemaakte wandmeubel met geïntegreerde gashaard en akoestische panelen ademt luxe. De airco en trapkast maken het geheel compleet.

De halfopen keuken aan de voorzijde is een waar kookparadijs. Dit moderne keukenblok uit 2021 is voorzien van hoogwaardige apparatuur, waaronder een Bora inductiekookplaat met geïntegreerde afzuiging, Quooker, wijnkast, combimagnetron en meer. De afwerking met composieten werkbladen en ruimtelijke opstelling maakt dit een genot om in te koken.

Eerste verdieping:
Op de eerste verdieping bevinden zich drie volwaardige slaapkamers van circa 18,5 m², 14 m² en 9 m². De twee grootste kamers zijn uitgerust met airco-units. De kleinere kamer is momenteel in gebruik als kleedkamer met een royale schuifkastenwand. De luxe badkamer biedt een wellnessbeleving met een design ligbad, ruime inloopdouche, modern wastafelmeubel, hangend toilet, vloerverwarming en daglicht via het raam.

Tweede verdieping:
De bovenste etage biedt twee lichte slaapkamers dankzij de brede dakkapellen. De grootste kamer beschikt daarnaast over een Velux-dakraam en extra bergruimte. Verder is er een aparte bergkamer met cv-opstelling, WTW-unit, wasmachine- en drogeraansluiting. Ook hier is airconditioning aanwezig.

Buitenruimte:
De diepe achtertuin (circa 15 meter) is gelegen op het zonnige zuidwesten en is modern aangelegd met strakke bestrating, groen gazon en houten schuttingen. De robuuste veranda achterin de tuin biedt een beschutte plek om te ontspannen, ook op warme zomerdagen. De dubbele houten berging (ca. 10 m²) is voorzien van elektra en heeft een handige achterom naar het parkeerhof.

Bijzonderheden:
- Bouwjaar 2009 | Woonoppervlakte circa 158 m² | Perceel: 152 m² eigen grond
- Energielabel A | 14 zonnepanelen (2023)
- Luxe afwerking met o.a. vloerverwarming, pvc-vloeren, airco (2023)
- Moderne keuken en stijlvolle badkamer/toilet
- Diepe achtertuin op het zuidwesten met veranda en berging
- Professioneel buitenschilderwerk (2023)
- Gelegen aan een rustige straat nabij alle voorzieningen: scholen, winkels, sportvelden, NS-station, Maximapark en
uitvalswegen naar Utrecht, Amsterdam en Den Haag

Een zeldzame kans om royaal, stijlvol én duurzaam te wonen op een toplocatie in Vleuten – dit huis moet je ervaren!

Lees verder

Bewoners aan het woord

  • Opmerking

    Het is onwijs fijn wonen aan de Kolland. De kinderen spelen aan de voorkant in de rustige doodlopende straat of achter op het hofje. Daarnaast kent de buurt elkaar goed en wordt er regelmatig een borrel georganiseerd.
    Op loopafstand vind je het Maximapark en het dorp met alle winkels en leuke restaurantjes.

  • Opmerking

    Het is onwijs fijn wonen aan de Kolland. Het is een gezellige straat waar iedereen elkaar kent, de kinderen lekker buiten spelen voor in de rustige doodlopende straat of achter op het hofje. Ook regelmatig wordt er een borrel georganiseerd in de buurt.

Kenmerken

  • Vraagprijs € 785.000,- k.k.
  • Aanvaarding In overleg
  • Type Tussenwoning
  • Bouwjaar 2009
  • Woonoppervlakte ca. 158 m2
  • Externe bergruimte ca. 11 m2
  • Slaapkamers 5
  • Inhoud ca. 556 m3
  • Perceeloppervlakte ca. 152 m2
  • Ligging tuin Zuidwest
  • Energielabel A
  • Isolatie Volledig geisoleerd
  • Verwarming Cv ketel, gashaard
  • C.v.-ketel bouwjaar 2009
  • Voorzieningen Mechanische ventilatie, tv kabel, airconditioning, zonnepanelen
  • Parkeerfaciliteiten Openbaar parkeren
  • Garage Geen garage
Meer kenmerken

Kenmerken toegevoegd door verkoper, vrienden en familie

  • Kenmerk(en)
    Kindvriendelijke buurt
  • Kenmerk(en)
    Gezellige buren
  • Kenmerk(en)
    Zonnige tuin

In de buurt

Kolland 17 3452 NM Vleuten

      De buurt

      Burgerlijke staat in wijk
      Gehuwd
      Ongehuwd
      Gescheiden
      Verweduwd
      • Gehuwd (33.90%)
      • Ongehuwd (58.01%)
      • Gescheiden (6.08%)
      • Verweduwd (2.00%)
      Leeftijd in wijk
      0 - 15 jaar
      15 - 25 jaar
      25-45 jaar
      45 - 65 jaar
      65+ jaar
      • 0 - 15 jaar (29.30%)
      • 15 - 25 jaar (6.23%)
      • 25 - 45 jaar (39.61%)
      • 45 - 65 jaar (16.84%)
      • 65+ jaar (8.01%)
      Geslacht
      • Mannen (48.92%)
      • Vrouwen (51.08%)
      Gezinnen met kinderen
      0 - 15 jaar
      15 - 25 jaar
      25-45 jaar
      • Met kinderen (51.39%)
      • Zonder kinderen (24.40%)
      • Éénpersoons huishoudens (24.21%)
      Woningen koop / huur
      • Koop (61.00%)
      • Huur (39.00%)
      Aantal inwoners:

      6735

      Schaduwwijzer

      Media

      Plattegronden

      Ander aanbod