Jaffastraat 3, Utrecht | Beumer

Jaffastraat 3

3532 EL, Utrecht

Ben je op zoek naar een instapklare, royale jaren ’30 eengezinswoning, voorzien van veel ruimte en comfort? Lees dan snel verder en kijk snel binnen. Deze woning is tussen 2018 en 2020 compleet gerenoveerd en biedt je veel comfort;, een heerlijke lichte woonkamer, een

  • 120 m2
  • 105 m2
  • Label C
  • 5 kamer(s)

€ 575.000,- k.k. Bereken maandlasten

Bereken maandlasten
Heb je een hypotheek nodig?

Omschrijving

Ben je op zoek naar een instapklare, royale jaren ’30 eengezinswoning, voorzien van veel ruimte en comfort? Lees dan snel verder en kijk snel binnen.

Deze woning is tussen 2018 en 2020 compleet gerenoveerd en biedt je veel comfort;, een heerlijke lichte woonkamer, een grote woonkeuken met kookeiland en openslaande deuren richting de tuin, vier slaapkamers en twee badkamers, waarvan één met jacuzzi.

Deze tussenwoning is centraal gelegen, in één van de gezelligste buurten van Utrecht. Je vindt de meeste voorzieningen op loopafstand: kinderopvang, scholen, winkels, bibliotheek, uitgaansgelegenheden, openbaar vervoer en uitvalswegen.

Indeling:

Begane grond:
Je betreedt de woning…

Ben je op zoek naar een instapklare, royale jaren ’30 eengezinswoning, voorzien van veel ruimte en comfort? Lees dan snel verder en kijk snel binnen.

Deze woning is tussen 2018 en 2020 compleet gerenoveerd en biedt je veel comfort;, een heerlijke lichte woonkamer, een grote woonkeuken met kookeiland en openslaande deuren richting de tuin, vier slaapkamers en twee badkamers, waarvan één met jacuzzi.

Deze tussenwoning is centraal gelegen, in één van de gezelligste buurten van Utrecht. Je vindt de meeste voorzieningen op loopafstand: kinderopvang, scholen, winkels, bibliotheek, uitgaansgelegenheden, openbaar vervoer en uitvalswegen.

Indeling:

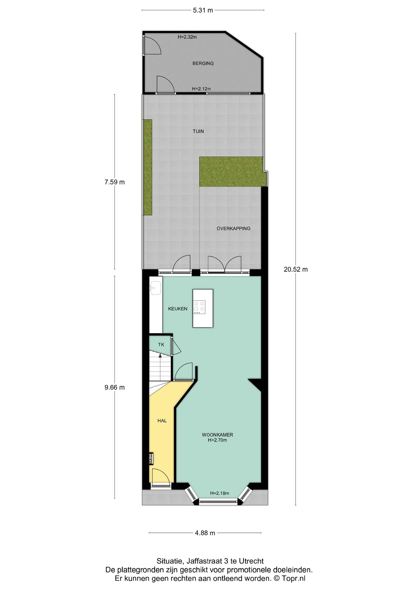
Begane grond:
Je betreedt de woning in de lichte hal; hier tref je de meterkast, plek voor een garderobe en de trapopgang. Het hoge plafond, de tegeltjes op de wanden en de plavuizenvloer zijn van die heerlijke jaren ’30 details, waardoor we houden van huizen uit deze tijd. Je krijgt toegang tot de living met open keuken. Door de erker aan de voorzijde valt er veel daglicht in de woonkamer; tezamen met de lichte wanden zorgt het voor een zeer lichte living. De warme tint van de eikenhouten lamelparketvloer brengt veel sfeer in de kamer. Er is voldoende ruimte voor een comfortabele zithoek.

Aan de achterzijde vind je de royale woonkeuken en een half betegelde toiletruimte. De keuken is ingericht met een licht keukenmeubel, een kookeiland en is van alle gemakken voorzien: een inductiekookplaat, combi-oven, een nieuwe kraan en een vaatwasser zijn vervangen in 2018, en tevens een koel-/vriescombinatie, afzuiging en voldoende opbergruimte. Je plaatst met gemak een grote eethoek, vanwaar je zicht hebt op de tuin door de openslaande tuindeuren.

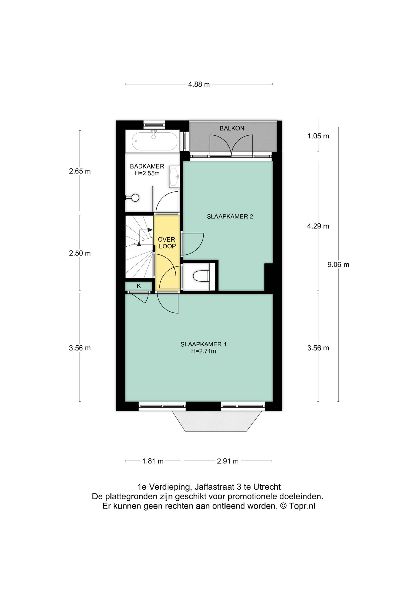
1e verdieping:
De overloop biedt je twee slaapkamers, de badkamer en een separaat toilet. De slaapkamer aan de voorzijde is lekker ruim en voorzien van een inbouwkast. De kamer aan de achterzijde is voorzien van een aangrenzend balkon. De slaapkamers zijn zeer netjes afgewerkt; lichte wanden met een subtiele kleurtoevoeging, veel daglicht en een laminaatvloer. De badkamer is geheel betegeld en uitgerust met een jacuzzi, een inloopdouche met glazen wand en douchepaneel, een wastafelmeubel, spiegelkast en vloerverwarming.

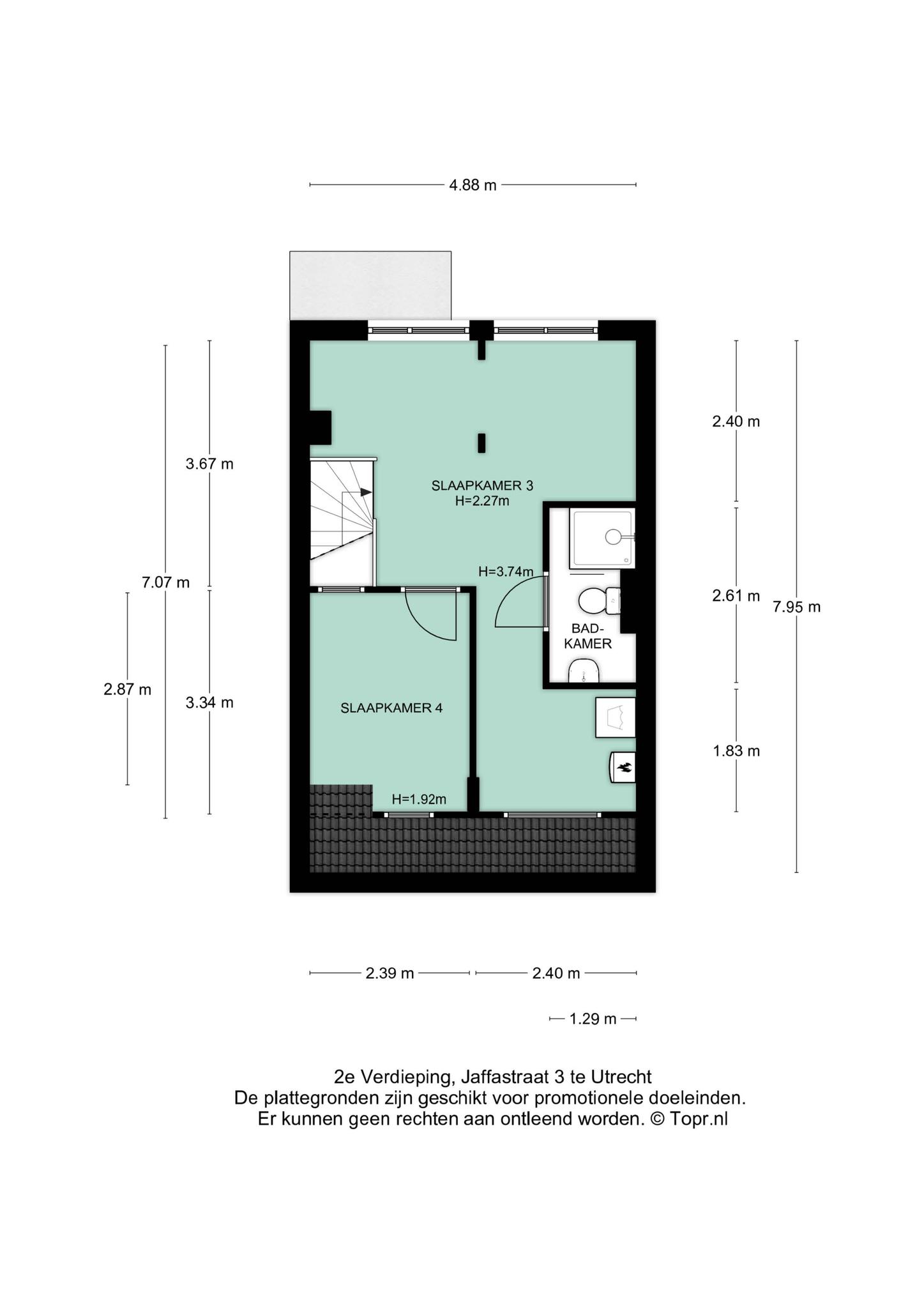
2e verdieping:
Op de tweede verdieping krijg je toegang tot een open derde slaapkamer met badkamer en suite en een vierde slaapkamer. De open kamer is voorzien van een groot dakkapel, waardoor er veel daglicht binnenvalt. Om de hoek tref je de witgoedaansluitingen en de cv-ketel opstelling (Nefit 2018), ook hier zorgt de dakkapel voor veel lichtinval. Deze slaapkamers zijn eveneens voorzien van een nette afwerking: lichte wanden met toevoeging van kleur en een kunststof/vinyl vloer. De badkamer is uitgerust met een douche, wastafel en een derde toilet.

Buiten:
De achtertuin is een heerlijke plek om te vertoeven; netjes aangelegd met sierbestrating, beplante borders, een grote berging en een achterom waardoor er met gemak een bakfiets gestald kan worden. Hier geniet je van de zonnige - en zelfs van de mindere dagen, onder de grote overkapping.

Bijzonderheden:
• Woonoppervlakte: 120 m²
• Externe bergruimte: 12 m²
• Bouwjaar: 1936
• Een heerlijk ruime tussenwoning
• Compleet gerenoveerd tussen 2018 en 2020
• Vloer- en dakisolatie, HR++ dubbelglas
• Nieuwe voordeur
• Een heerlijke lichte woonkamer
• Royale woonkeuken met kookeiland
• 4 slaapkamers
• 2 badkamers
• royale bergvliering
• Zonnige achtertuin gelegen op het noorden met achterin de zon en met overkapping aan de woning
• Nabij vele voorzieningen

Interesse in deze woning? Kom gerust eens langs met je aankoopmakelaar!

Lees verder

Kenmerken

  • Vraagprijs € 575.000,- k.k.
  • Aanvaarding In overleg
  • Type Tussenwoning
  • Bouwjaar 1936
  • Woonoppervlakte ca. 120 m2
  • Oppervlakte gebouwgebonden ca. 3 m2
  • Externe bergruimte ca. 12 m2
  • Slaapkamers 4
  • Inhoud ca. 423 m3
  • Perceeloppervlakte ca. 105 m2
  • Ligging tuin Noord
  • Energielabel C
  • Isolatie Dakisolatie, vloerisolatie, hr glas
  • Verwarming Cv ketel
  • C.v.-ketel bouwjaar 2018
  • Parkeerfaciliteiten Openbaar parkeren, betaald parkeren, parkeervergunningen
  • Garage Geen garage
Meer kenmerken

In de buurt

Jaffastraat 3 3532 EL Utrecht

      De buurt

      Burgerlijke staat in wijk
      Gehuwd
      Ongehuwd
      Gescheiden
      Verweduwd
      • Gehuwd (18.54%)
      • Ongehuwd (75.72%)
      • Gescheiden (3.86%)
      • Verweduwd (1.89%)
      Leeftijd in wijk
      0 - 15 jaar
      15 - 25 jaar
      25-45 jaar
      45 - 65 jaar
      65+ jaar
      • 0 - 15 jaar (15.41%)
      • 15 - 25 jaar (18.11%)
      • 25 - 45 jaar (44.59%)
      • 45 - 65 jaar (15.90%)
      • 65+ jaar (5.98%)
      Geslacht
      • Mannen (47.41%)
      • Vrouwen (52.59%)
      Gezinnen met kinderen
      0 - 15 jaar
      15 - 25 jaar
      25-45 jaar
      • Met kinderen (21.19%)
      • Zonder kinderen (22.06%)
      • Éénpersoons huishoudens (56.75%)
      Woningen koop / huur
      • Koop (50.00%)
      • Huur (50.00%)
      Aantal inwoners:

      6085

      Schaduwwijzer

      Media

      Plattegronden

      Ander aanbod