Jacob van Deventerstraat 50, Ijsselstein | Beumer

Jacob van Deventerstraat 50

3404 GB, Ijsselstein

Deze instapklare tussenwoning is op een mooie locatie gelegen in de wijk Zenderpark en onder andere voorzien van een royale woonkamer, moderne keuken, luxe badkamer, kunststof kozijnen, drie goed bemeten slaapkamers en een nette achtertuin. In 2018 zijn de vloeren, het

  • 106 m2
  • 135 m2
  • Label A
  • 4 kamer(s)

€ 400.000,- k.k. Bereken maandlasten

Bereken maandlasten
Heb je een hypotheek nodig?

Omschrijving

Deze instapklare tussenwoning is op een mooie locatie gelegen in de wijk Zenderpark en onder andere voorzien van een royale woonkamer, moderne keuken, luxe badkamer, kunststof kozijnen, drie goed bemeten slaapkamers en een nette achtertuin. In 2018 zijn de vloeren, het stucwerk en de keuken vernieuwd, alsmede in 2021 de badkamer.
De woning is gebouwd in 2004, wordt verwarmd middels een cv-ketel, heeft een woonoppervlakte van 106 m2 en is voorzien van energielabel A.
In de directe omgeving bevinden zich vele voorzieningen, waaronder de oude binnenstad van IJsselstein met al haar voorzieningen, scholen, speelvoorzieningen, theater, sportvoorzieningen, supermarkten en…

Deze instapklare tussenwoning is op een mooie locatie gelegen in de wijk Zenderpark en onder andere voorzien van een royale woonkamer, moderne keuken, luxe badkamer, kunststof kozijnen, drie goed bemeten slaapkamers en een nette achtertuin. In 2018 zijn de vloeren, het stucwerk en de keuken vernieuwd, alsmede in 2021 de badkamer.
De woning is gebouwd in 2004, wordt verwarmd middels een cv-ketel, heeft een woonoppervlakte van 106 m2 en is voorzien van energielabel A.
In de directe omgeving bevinden zich vele voorzieningen, waaronder de oude binnenstad van IJsselstein met al haar voorzieningen, scholen, speelvoorzieningen, theater, sportvoorzieningen, supermarkten en openbaar vervoer. Doormiddel van de tramverbinding (op ca. 3 minuten loopafstand) zijn Nieuwegein en Utrecht binnenstad eveneens snel te bereiken. In de straat bevindt zich tevens veel parkeergelegenheid.

Indeling:
Begane grond:
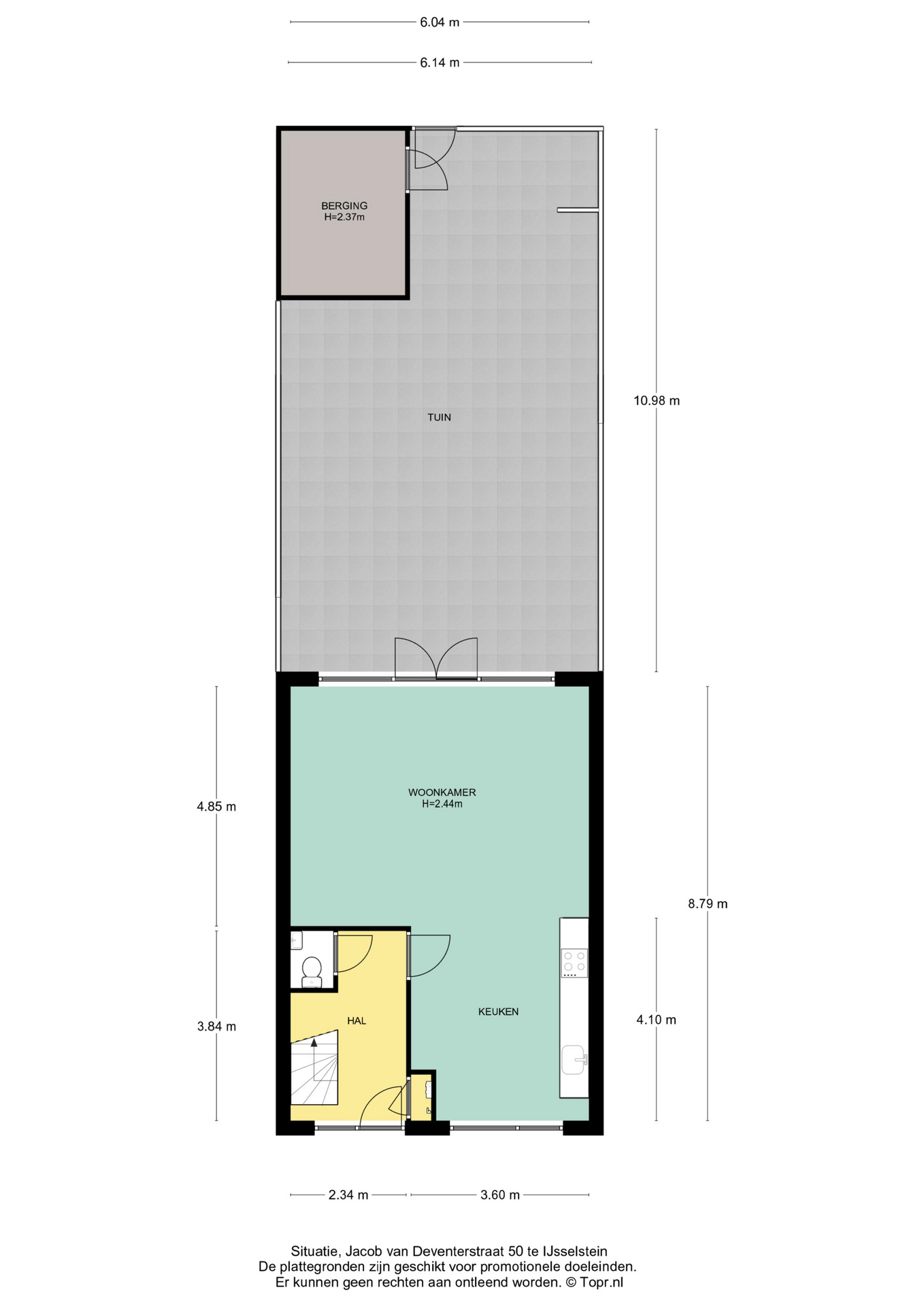
De hal/entree biedt toegang tot de ruime woonkamer van met open keuken, trapopgang naar de eerste verdieping, de meterkast en het toilet met fontein. De keuken uit 2018 is luxe uitgevoerd en voorzien van een inductie kookplaat, oven, vaatwasser, afzuigkap, koelkast en mooi aanrechtblad.
In 2018 is tevens de nette laminaatvloer met extra brede planken gelegd en zijn de wanden gestuct. Dit geeft de woning een luxe uitstraling.
Via de openslaande deuren is de royale achtertuin van 58 m2 te bereiken. Deze is volledig betegeld en beschikt over een stenen berging, alsmede een achterom.

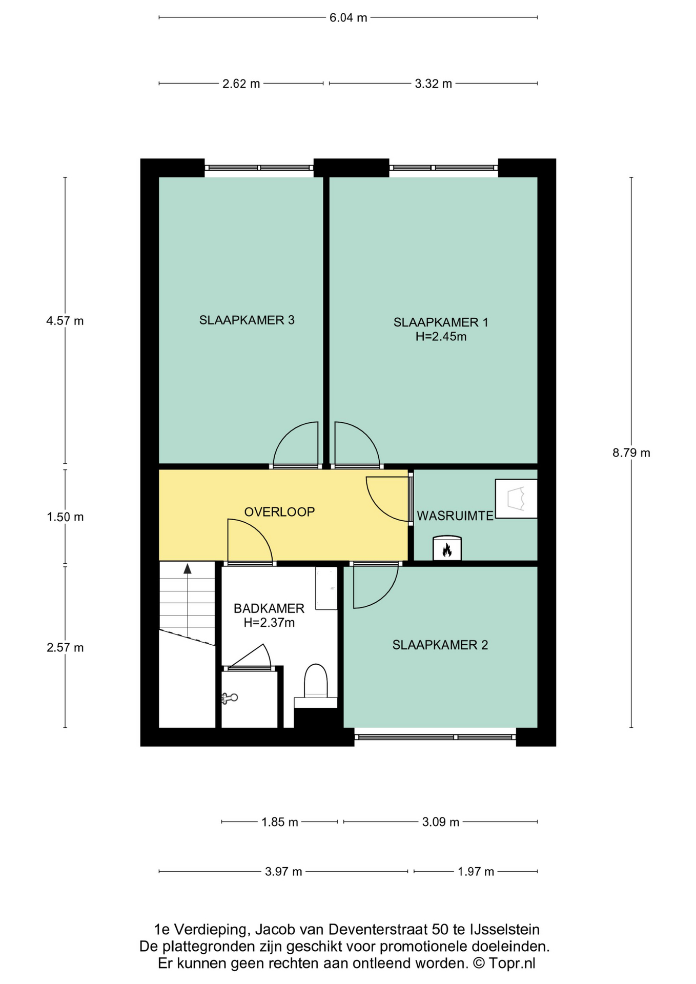
Eerste verdieping:
Via de overloop zijn de moderne badkamer, was-/stookruimte en een drietal goed bemeten slaapkamers van ca. 15 m2, 12 m2 en 8 m2 te bereiken. De badkamer is in 2021 vernieuwd en beschikt over een moderne tegelkeuze, een toilet, douche, wastafelmeubel en designradiator. Ook deze verdieping is in 2018 voorzien van een nieuwe vloer en stucwerk.

Bijzonderheden:
- Instapklare woning;
- Keuken, vloeren en wandafwerking in 2018 vernieuwd;
- Badkamer in 2021 vernieuwd;
- Drie goed bemeten slaapkamers;
- Woonoppervlakte: 106 m2;
- Bouwjaar: 2004;
- Energielabel: A;
- Gunstig gelegen, nabij vele voorzieningen;
- Oplevering in overleg.

Interesse in deze woning? Kom gerust eens langs met je aankoopmakelaar!

Lees verder

Kenmerken

  • Vraagprijs € 400.000,- k.k.
  • Aanvaarding In overleg
  • Type Tussenwoning
  • Bouwjaar 2004
  • Woonoppervlakte ca. 106 m2
  • Externe bergruimte ca. 8 m2
  • Slaapkamers 3
  • Inhoud ca. 351 m3
  • Perceeloppervlakte ca. 135 m2
  • Ligging tuin Noord
  • Energielabel A
  • Isolatie Dakisolatie, muurisolatie, vloerisolatie, dubbel glas
  • Verwarming Cv ketel
  • C.v.-ketel bouwjaar 2004
  • Voorzieningen Mechanische ventilatie, tv kabel
  • Parkeerfaciliteiten Openbaar parkeren
  • Garage Geen garage
Meer kenmerken

In de buurt

Jacob van Deventerstraat 50 • 3404 GB • Ijsselstein

      De buurt

      Burgerlijke staat in wijk
      Gehuwd
      Ongehuwd
      Gescheiden
      Verweduwd
      • Gehuwd (35.96%)
      • Ongehuwd (56.90%)
      • Gescheiden (6.40%)
      • Verweduwd (0.74%)
      Leeftijd in wijk
      0 - 15 jaar
      15 - 25 jaar
      25-45 jaar
      45 - 65 jaar
      65+ jaar
      • 0 - 15 jaar (29.70%)
      • 15 - 25 jaar (11.63%)
      • 25 - 45 jaar (31.68%)
      • 45 - 65 jaar (24.50%)
      • 65+ jaar (2.48%)
      Geslacht
      • Mannen (51.61%)
      • Vrouwen (48.39%)
      Gezinnen met kinderen
      0 - 15 jaar
      15 - 25 jaar
      25-45 jaar
      • Met kinderen (67.18%)
      • Zonder kinderen (18.32%)
      • Éénpersoons huishoudens (14.50%)
      Woningen koop / huur
      • Koop (78.00%)
      • Huur (22.00%)
      Aantal inwoners:

      2015

      Schaduwwijzer

      Media

      Plattegronden

      Ander aanbod