Gruttostraat 2-B, Utrecht | Beumer

Gruttostraat 2 B

3582TH, Utrecht

Alleen kandidaten die vooraf via DAK/Woningnet hebben aangegeven dat zij geïnteresseerd zijn in deze woningen, kunnen worden meegenomen in het verdere toewijzingsproces. Kandidaten die zich niet via dit systeem hebben aangemeld, worden niet beoordeeld. ​ Sociale huur – Wonen

  • 30 m2
  • Label A+

€ 682,- p/m Bereken maandlasten

Bereken maandlasten
Heb je een verzekering nodig?

Omschrijving

Alleen kandidaten die vooraf via DAK/Woningnet hebben aangegeven dat zij geïnteresseerd zijn in deze woningen, kunnen worden meegenomen in het verdere toewijzingsproces. Kandidaten die zich niet via dit systeem hebben aangemeld, worden niet beoordeeld. ​ Sociale huur – Wonen aan de Gansstraat Aan de Gansstraat in Utrecht komen 13 nieuwe sociale huurappartementen beschikbaar in een stijlvol nieuwbouwcomplex met een moderne uitstraling. De karakteristieke bakstenen gevel en het speelse ontwerp geven het gebouw een eigentijdse en levendige sfeer. ​ De appartementen hebben een woonoppervlakte van circa 30 m² en zijn compact, licht en slim ingedeeld. Dankzij de doordachte plattegronden wordt elke…

Alleen kandidaten die vooraf via DAK/Woningnet hebben aangegeven dat zij geïnteresseerd zijn in deze woningen, kunnen worden meegenomen in het verdere toewijzingsproces. Kandidaten die zich niet via dit systeem hebben aangemeld, worden niet beoordeeld.

Sociale huur – Wonen aan de Gansstraat
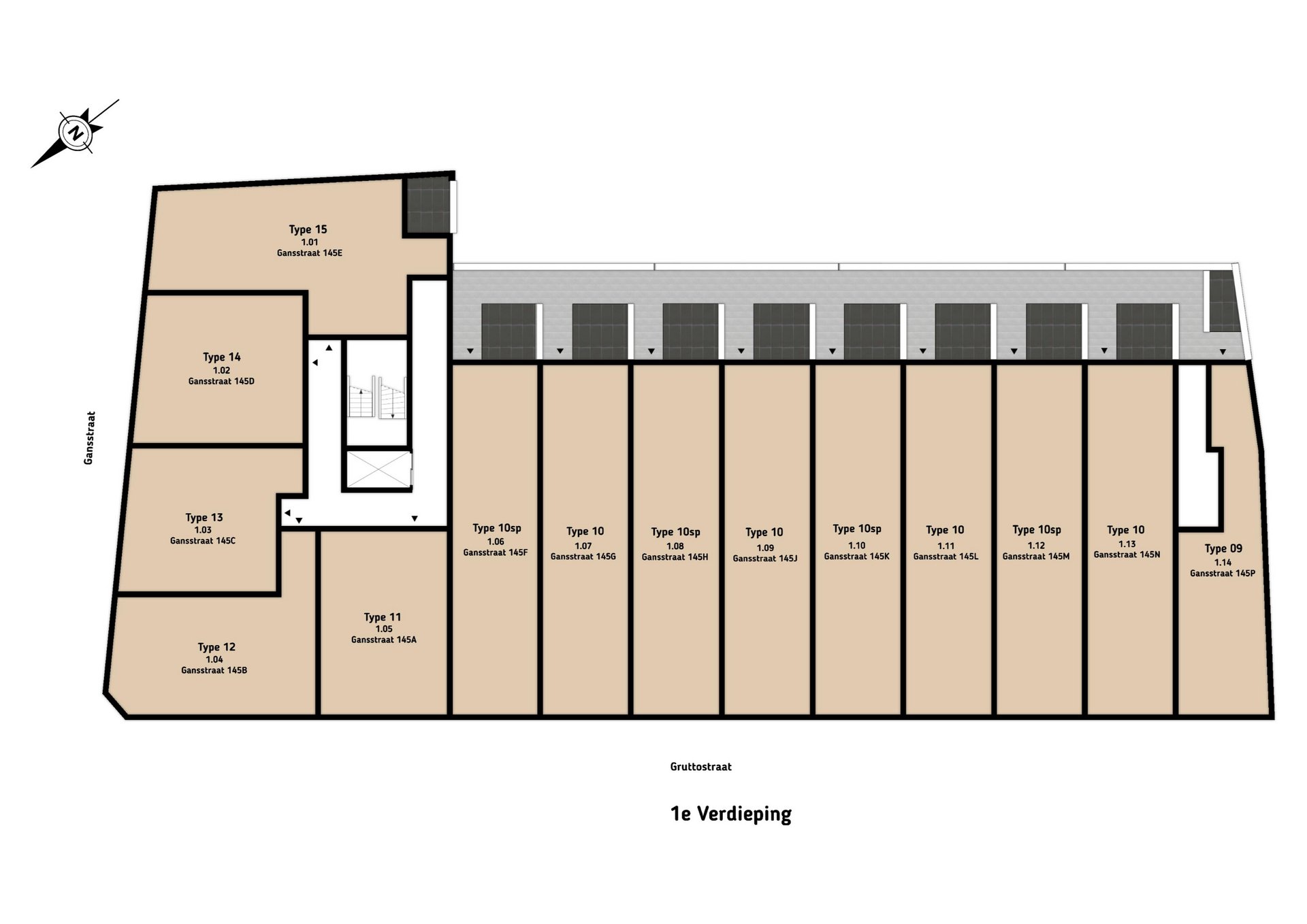
Aan de Gansstraat in Utrecht komen 13 nieuwe sociale huurappartementen beschikbaar in een stijlvol nieuwbouwcomplex met een moderne uitstraling. De karakteristieke bakstenen gevel en het speelse ontwerp geven het gebouw een eigentijdse en levendige sfeer.

De appartementen hebben een woonoppervlakte van circa 30 m² en zijn compact, licht en slim ingedeeld. Dankzij de doordachte plattegronden wordt elke vierkante meter optimaal benut — ideaal voor alleenstaanden of een starter die graag midden in de stad wonen. De appartementen zijn niet geschikt voor gezinnen, maar vooral voor 1 persoonshuishoudens.

Belangrijk om te weten:
-Inschrijving en reageren verloopt via Woningnet.
-Sleutelberoepen (onderwijs, zorg en politie) krijgen voorrang.
-Bezichtigen is niet mogelijk (het is namelijk nog in aanbouw)
-Prognose oplevering medio april 2026
-Toewijzing vanaf 22 december 2025
Kenmerken van de woning:
-Appartement van ca. 30,3 m²
-Huurprijs: € 682 per maand
-Servicekosten: € 45 per maand
-Wanden worden opgeleverd in basisafwerking (behangklaar); verdere afwerking is voor de huurder.
-Volledig gasloos, met per ruimte individueel regelbare klimaatbeheersing.
-Waarborgsom: 1 tot 2 maanden huur

Inkomenseisen:
Voor de 13 sociale huurwoningen gelden de volgende inkomenseisen:
Alle vaste inkomsten mogen worden meegerekend, zoals salaris, vakantiegeld, dertiende maand en (pensioen)uitkering. Niet meegenomen worden:
– Jaarlijks fluctuerende bedragen
– Inkomsten uit flex-, oproep- of uitzendwerk
– Overwerk en onregelmatigheidstoeslag
Beschikbaar vermogen op een Nederlandse bankrekening mag voor 10% worden toegevoegd aan het jaarinkomen.

Sociale huur (2025):
De sociale huurwoningen zijn bedoeld voor huishoudens met een inkomen binnen de daarvoor geldende grenzen. In 2025 geldt:
-Eenpersoonshuishouden: maximaal € 49.699 bruto per jaar

Alle projectinformatie en details over de woningen zijn te vinden op de website: https://www.beumer.nl/nieuwbouw/project/de-gansstraat/

Interesse? Schrijf je dan snel in.

Lees verder

Kenmerken

  • Vraagprijs € 682,- p/m
  • Type Appartement
  • Bouwjaar 2025
  • Woonoppervlakte ca. 30.30 m2
  • Inhoud ca. 90.90 m3
  • Energielabel A+
Meer kenmerken

In de buurt

Gruttostraat 2B 3582TH Utrecht

      Schaduwwijzer

      Plattegronden