Gansstraat 145-K, Utrecht | Beumer

Gansstraat 145 K

3582EG, Utrecht

Vrije sector – Wonen aan de Gansstraat Aan de Gansstraat verrijst een modern appartementencomplex van vier woonlagen, terwijl het deel aan de Gruttostraat drie verdiepingen telt. Het project onderscheidt zich door zijn bijzondere architectuur: een gevel opgebouwd uit

  • 58 m2
  • Label A++++

€ 1.425,- p/m Bereken maandlasten

Bereken maandlasten
Heb je een verzekering nodig?

Omschrijving

Vrije sector – Wonen aan de Gansstraat Aan de Gansstraat verrijst een modern appartementencomplex van vier woonlagen, terwijl het deel aan de Gruttostraat drie verdiepingen telt. Het project onderscheidt zich door zijn bijzondere architectuur: een gevel opgebouwd uit karakteristieke bakstenen, speelse dieptewerking en een stijlvolle uitstraling. In het hart van het complex bevindt zich een groene binnentuin van maar liefst 600 m², toegankelijk via een doorgang onder het gebouw – een rustige, beschutte plek midden in de stad. Belangrijk om te weten: -Sleutelberoepen (onderwijs, zorg en politie) krijgen voorrang. -Bezichtigen is niet mogelijk (het is namelijk nog in aanbouw) -Prognose…

Vrije sector – Wonen aan de Gansstraat

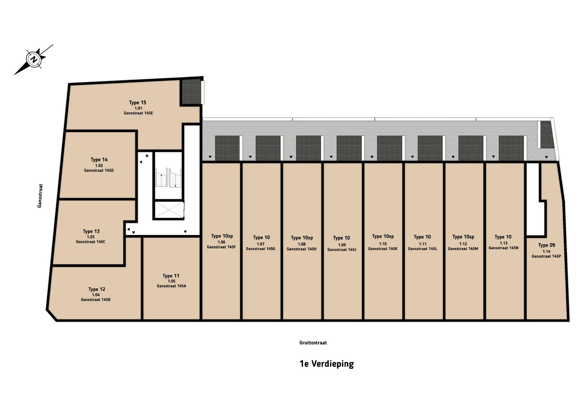
Aan de Gansstraat verrijst een modern appartementencomplex van vier woonlagen, terwijl het deel aan de Gruttostraat drie verdiepingen telt. Het project onderscheidt zich door zijn bijzondere architectuur: een gevel opgebouwd uit karakteristieke bakstenen, speelse dieptewerking en een stijlvolle uitstraling. In het hart van het complex bevindt zich een groene binnentuin van maar liefst 600 m², toegankelijk via een doorgang onder het gebouw – een rustige, beschutte plek midden in de stad.

Belangrijk om te weten:
-Sleutelberoepen (onderwijs, zorg en politie) krijgen voorrang.
-Bezichtigen is niet mogelijk (het is namelijk nog in aanbouw)
-Prognose oplevering medio maart 2026
-Toewijzing vanaf 22 december 2025
Kenmerken van de woning:
-Appartement van ca. 57,9 m²
-Huurprijs: € 1.425,- per maand
-Servicekosten: € 80,- per maand
-Wanden worden opgeleverd in basisafwerking (behangklaar); verdere afwerking is voor de huurder.
-Volledig gasloos, met per ruimte individueel regelbare klimaatbeheersing.
-Waarborgsom: 1 tot 2 maanden huur

Inkomenseisen:
Voor zowel de 10 middenhuurwoningen als de 22 vrije-sector huurwoningen gelden de volgende inkomenseisen:
-1 contractant: minimaal 3,5 × de kale maandhuur
-2 contractanten: gezamenlijk minimaal 4 × de kale maandhuur
Alle vaste inkomsten mogen worden meegerekend, zoals salaris, vakantiegeld, dertiende maand en (pensioen)uitkering. Niet meegenomen worden:
– Jaarlijks fluctuerende bedragen
– Inkomsten uit flex-, oproep- of uitzendwerk
– Overwerk en onregelmatigheidstoeslag

Beschikbaar vermogen op een Nederlandse bankrekening mag voor 10% worden toegevoegd aan het jaarinkomen.

Alle projectinformatie en details over de woningen zijn te vinden op de website: https://www.beumer.nl/nieuwbouw/project/de-gansstraat/

Interesse? Schrijf je dan snel in via je account op:
www.hurenbij.beumer.nl

Lees verder

Kenmerken

  • Vraagprijs € 1.425,- p/m
  • Type Appartement
  • Bouwjaar 2025
  • Woonoppervlakte ca. 57.90 m2
  • Slaapkamers 1
  • Inhoud ca. 173.70 m3
  • Energielabel A++++
Meer kenmerken

In de buurt

Gansstraat 145K 3582EG Utrecht

      Schaduwwijzer

      Plattegronden