Beumer

Bouwnummer 30, Mastenbroek 2 – rijwoningen, Achterveld

Achterveld

De verkoop is gestart! Bouwnummer 30 (type A) Woonoppervlakte: ca. 112 m2 Kaveloppervlakte: ca. 194 m2 Beukmaat: 5.10 meter Parkeerplaats op eigen terrein •

€ 405.000,- v.o.n. Bereken maandlasten

Bereken maandlasten
Heb je een hypotheek nodig?

Omschrijving

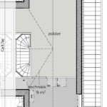
De verkoop is gestart! Bouwnummer 30 (type A) Woonoppervlakte: ca. 112 m2 Kaveloppervlakte: ca. 194 m2 Beukmaat: 5.10 meter Parkeerplaats op eigen terrein • Nul-op-de-meter (lucht-water-warmtepomp met zonnepanelen) • Lichte tuingerichte woonkamer • Keuken aan de voorzijde van het huis • Standaard voorzien van 3 slaapkamers • Complete badkamer met douche, wastafel en toilet • Zolder met technische ruimte Optioneel • Uitbouw achtergevel 1.20/1.80/2.40 meter • Dubbele openslaande deuren of schuifpui in achtergevel • Trapkast • Slaapkamers achterzijde samenvoegen • Extra kamer op zolder • Dakkapel en dakraam (onder voorbehoud van aantallen en posities PV panelen) Kijk op de projectwebsite…

De verkoop is gestart!

Bouwnummer 30 (type A)
Woonoppervlakte: ca. 112 m2
Kaveloppervlakte: ca. 194 m2
Beukmaat: 5.10 meter
Parkeerplaats op eigen terrein

• Nul-op-de-meter (lucht-water-warmtepomp met zonnepanelen)
• Lichte tuingerichte woonkamer
• Keuken aan de voorzijde van het huis
• Standaard voorzien van 3 slaapkamers
• Complete badkamer met douche, wastafel en toilet
• Zolder met technische ruimte

Optioneel
• Uitbouw achtergevel 1.20/1.80/2.40 meter
• Dubbele openslaande deuren of schuifpui in achtergevel
• Trapkast
• Slaapkamers achterzijde samenvoegen
• Extra kamer op zolder
• Dakkapel en dakraam (onder voorbehoud van aantallen en posities PV panelen)

Kijk op de projectwebsite voor meer informatie over het project en de woningen.
Het inschrijven op de woningen van Mastenbroek 2 Fase 1 kan vanaf nu en verloopt geheel digitaal via de projectwebsite!

Lees verder

Kenmerken

  • Prijs € 405.000 v.o.n.
  • Slaapkamers 4
  • Aanvaarding In overleg
  • Bouwvorm Nieuwbouw
  • Onderhoud binnen Uitstekend
  • Onderhoud buiten Uitstekend
  • Gebruiksoppervlakte wonen ca. 112 m2
  • Inhoud ca. 314 m3
  • Aantal slaapkamers 4
  • Aantal woonlagen 3 woonlagen
  • Voorzieningen Mechanische ventilatie, glasvezel kabel, zonnepanelen, balansventilatie
  • Isolatie Volledig geisoleerd
  • Verwarming Vloerverwarming geheel, warmtepomp, warmte terugwininstallatie
  • Warm water Elektrische boiler eigendom
  • Tuintypes Achtertuin, voortuin
  • Hoofdtuin Achtertuin
  • Oppervlakte hoofdtuin ca. 88 m2
Meer kenmerken

In de buurt

Bouwnummer 30, Mastenbroek 2 – rijwoningen, Achterveld