Rooseveltlaan 728, Utrecht | Beumer

Rooseveltlaan 728

3526 BJ, Utrecht

Dit ruime 2-kamer appartement (voorheen 3 kamers) met balkon en berging ligt aan de rand van de wijk “Kanaleneiland”, met aan de voorzijde een prachtig uitzicht over een groenstrook/wandelboulevard en het Amsterdam-Rijnkanaal. Op steenworp afstand ligt winkelcentrum

  • 67 m2
  • Label E
  • 2 kamer(s)

€ 300.000,- k.k. Bereken maandlasten

Bereken maandlasten
Heb je een hypotheek nodig?

Omschrijving

Dit ruime 2-kamer appartement (voorheen 3 kamers) met balkon en berging ligt aan de rand van de wijk “Kanaleneiland”, met aan de voorzijde een prachtig uitzicht over een groenstrook/wandelboulevard en het Amsterdam-Rijnkanaal.

Op steenworp afstand ligt winkelcentrum Nova, waar je alles vindt wat je nodig hebt, van supermarkten zoals Albert Heijn tot diverse eettentjes, een slager, bakker en kledingwinkels. Elke vrijdagochtend is er ook een gezellige markt. Voor recreatie kun je genieten van een wandeling langs de boulevard aan het kanaal of een bezoek brengen aan Park Transwijk met kinderboerderij, moestuin en speeltuin. Binnen 15 minuten fiets je naar…

Dit ruime 2-kamer appartement (voorheen 3 kamers) met balkon en berging ligt aan de rand van de wijk “Kanaleneiland”, met aan de voorzijde een prachtig uitzicht over een groenstrook/wandelboulevard en het Amsterdam-Rijnkanaal.

Op steenworp afstand ligt winkelcentrum Nova, waar je alles vindt wat je nodig hebt, van supermarkten zoals Albert Heijn tot diverse eettentjes, een slager, bakker en kledingwinkels. Elke vrijdagochtend is er ook een gezellige markt. Voor recreatie kun je genieten van een wandeling langs de boulevard aan het kanaal of een bezoek brengen aan Park Transwijk met kinderboerderij, moestuin en speeltuin. Binnen 15 minuten fiets je naar het levendige centrum van Utrecht, waar je kunt genieten van de talloze terrassen, winkels en restaurants. De wijk is uitstekend bereikbaar met zowel het openbaar vervoer (bus en tram) als de auto. Diverse snelwegen zoals de A12 en A2 zijn gemakkelijk te bereiken.

De afwerking is gedateerd; een mooie kans voor de handige liefhebber om er iets moois van te maken!

Indeling

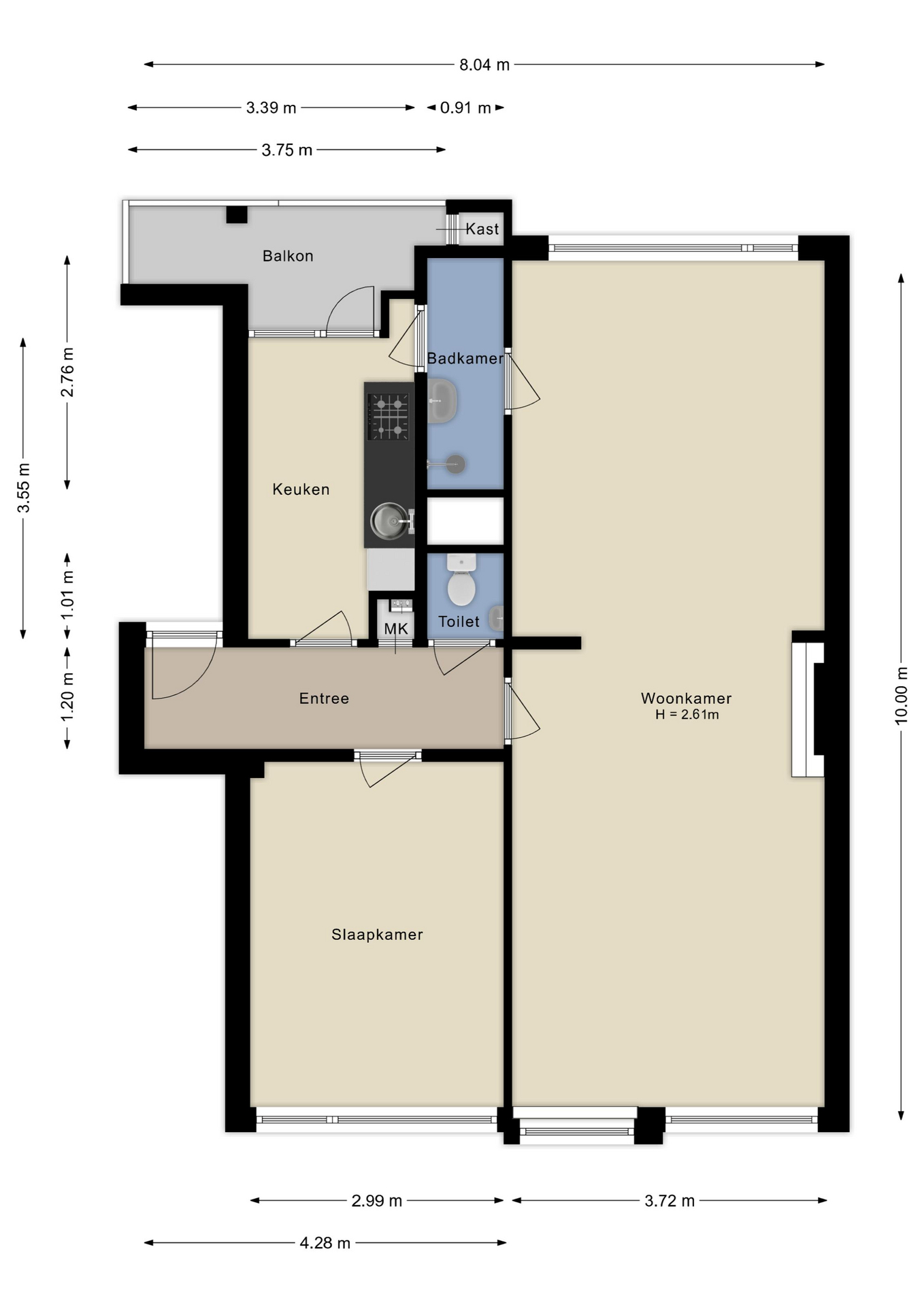
1e Verdieping
Entree/hal met meterkast en toilet met fonteintje. Royale doorzonwoonkamer met een fraai uitzicht op het Amsterdam-Rijnkanaal. De dichte, eenvoudige keuken aan de achterzijde met toegang tot het balkon met balkonkast. Eenvoudige badkamer met douche, wastafel en wasmachineaansluiting. Ruime slaapkamer aan de voorzijde.

Bijzonderheden
- Bouwjaar: 1962
- Woonoppervlakte: 67 m2
- Ruime berging in de onderbouw van 8 m2
- Grotendeels voorzien van kunststof kozijnen met dubbele beglazing
- Verwarming via gaskachels, verwarming via een geiser
- Actieve VvE, de servicekosten bedragen € 195,84 per maand
- De woning wordt verkocht via een ABC-constructie (projectnotaris Sutter Kars Nieuwegein)
- Er zal een niet-zelfbewoond-, ouderdoms- en asbestclausule in de koopovereenkomst worden opgenomen

Lees verder

Kenmerken

  • Vraagprijs € 300.000,- k.k.
  • Aanvaarding In overleg
  • Bouwjaar 1962
  • Woonoppervlakte ca. 67 m2
  • Oppervlakte gebouwgebonden ca. 4 m2
  • Externe bergruimte ca. 8 m2
  • Slaapkamers 1
  • Inhoud ca. 220 m3
  • Energielabel E
  • Isolatie Dubbel glas
  • Verwarming Gaskachels
  • Voorzieningen Tv kabel
  • Parkeerfaciliteiten Openbaar parkeren, betaald parkeren, parkeervergunningen
  • Garage Geen garage
Meer kenmerken

In de buurt

Rooseveltlaan 728 3526 BJ Utrecht

      De buurt

      Burgerlijke staat in wijk
      Gehuwd
      Ongehuwd
      Gescheiden
      Verweduwd
      • Gehuwd (30.59%)
      • Ongehuwd (60.61%)
      • Gescheiden (6.75%)
      • Verweduwd (2.04%)
      Leeftijd in wijk
      0 - 15 jaar
      15 - 25 jaar
      25-45 jaar
      45 - 65 jaar
      65+ jaar
      • 0 - 15 jaar (21.72%)
      • 15 - 25 jaar (15.71%)
      • 25 - 45 jaar (37.04%)
      • 45 - 65 jaar (17.81%)
      • 65+ jaar (7.71%)
      Geslacht
      • Mannen (51.53%)
      • Vrouwen (48.47%)
      Gezinnen met kinderen
      0 - 15 jaar
      15 - 25 jaar
      25-45 jaar
      • Met kinderen (31.64%)
      • Zonder kinderen (18.18%)
      • Éénpersoons huishoudens (50.18%)
      Woningen koop / huur
      • Koop (32.00%)
      • Huur (68.00%)
      Aantal inwoners:

      8800

      Schaduwwijzer

      Media

      Plattegronden

      Ander aanbod