Dorpsstraat 58-3, Nieuwegein | Beumer

Dorpsstraat 58 3

3433 CM, Nieuwegein

Welkom in dit unieke appartement tegenover de Oude Sluis aan de Dorpsstraat in Nieuwegein! Je woont hier in een prachtig gebouw dat ontworpen is in kubistische vormen in een monumentaal pand in expressionistische stijl. Het gebouw is van cultuurhistorische waarde

  • 81 m2
  • Label C
  • 3 kamer(s)

€ 375.000,- k.k. Bereken maandlasten

Bereken maandlasten
Heb je een hypotheek nodig?

Omschrijving

Welkom in dit unieke appartement tegenover de Oude Sluis aan de Dorpsstraat in Nieuwegein!

Je woont hier in een prachtig gebouw dat ontworpen is in kubistische vormen in een monumentaal pand in expressionistische stijl. Het gebouw is van cultuurhistorische waarde vanwege de voormalige functies. Het gebouw (bouwjaar 1932) is in 2020 herontwikkeld naar appartementen. Het appartement is dus geheel gemoderniseerd. Je beschikt hier over een ruime woonkamer, twee slaapkamers, een woonkeuken, een badkamer, en een separaat toilet. Het geheel is speels ingedeeld met trappen en diverse woonlagen en beschikt over een mooi aangelegde gemeenschappelijke tuin.

De Dorpsstraat ligt in het…

Welkom in dit unieke appartement tegenover de Oude Sluis aan de Dorpsstraat in Nieuwegein!

Je woont hier in een prachtig gebouw dat ontworpen is in kubistische vormen in een monumentaal pand in expressionistische stijl. Het gebouw is van cultuurhistorische waarde vanwege de voormalige functies. Het gebouw (bouwjaar 1932) is in 2020 herontwikkeld naar appartementen. Het appartement is dus geheel gemoderniseerd. Je beschikt hier over een ruime woonkamer, twee slaapkamers, een woonkeuken, een badkamer, en een separaat toilet. Het geheel is speels ingedeeld met trappen en diverse woonlagen en beschikt over een mooi aangelegde gemeenschappelijke tuin.

De Dorpsstraat ligt in het schilderachtige Vreeswijk aan de Lek. Met zijn rijke geschiedenis ademt de wijk een charmante en nostalgische sfeer uit. Het is een populaire plek voor liefhebbers van watersport, wandelaars en fietsers, die genieten van de prachtige uitzichten op de rivier. Vreeswijk herbergt diverse winkels, restaurants en cafés waar je kunt genieten van heerlijke terrasjes. Met de auto bereik je de A2 of de A27 binnen 5 minuten en het openbaar vervoer bevindt zich op 10 minuten loopafstand nabij het winkelcentrum Hoogzandveld waar je alle dagelijkse benodigdheden kunt vinden. Park Oudegein met natuur en sportfaciliteiten is slechts 6 minuten fietsen.

Indeling
Begane grond:
Gemeenschappelijke hal met meterkasten.

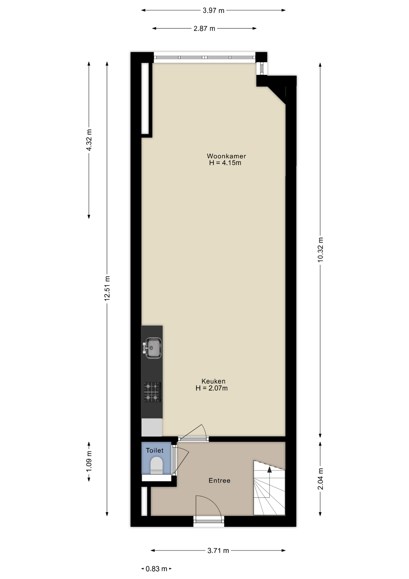
Je betreedt de woning in de hal vanwaar je toegang krijgt tot de ruime woonkamer met moderne keuken, het toilet en de trapopgang naar de eerste verdieping. De woonkamer is zeer royaal en beschikt over een moderne open inbouwkeuken met alle benodigde apparatuur.

Eerste verdieping:
Via de overloop zijn een tweetal goed bemeten slaapkamers te bereiken, alsmede de stookruimte en de moderne badkamer met douche, wastafel en toilet.

Buiten:
Je hebt de beschikking over een fraai aangelegde, besloten gemeenschappelijke tuin aan de achterzijde. De tuin is aangelegd met sierbestrating, grind en vaste beplanting.

Bijzonderheden van de woning:
- Bouwjaar: 1932, herontwikkeld in 2020;
- Woonoppervlakte: 81 m²;
- Het betreft een rijksmonument;
- Energielabel C;
- De VvE is recent opgericht. De VvE bijdrage voor dit appartement bedraagt € 114,- per maand;
- Er zal een niet-zelfbewoningsclausule worden opgenomen in de koopovereenkomst;
- De notariskeuze is voor verkoper. Bij deze transactie wordt gebruik gemaakt van een projectnotaris, namelijk Van Grafhorst Notarissen.

Neem je NVM makelaar mee naar de bezichtiging. Zeker weten dat je deze woning kunt betalen? Beumer Hypotheken kijkt graag met je mee!:

Lees verder

Kenmerken

  • Vraagprijs € 375.000,- k.k.
  • Aanvaarding In overleg
  • Bouwjaar 1932
  • Woonoppervlakte ca. 81 m2
  • Slaapkamers 2
  • Inhoud ca. 259 m3
  • Energielabel C
  • Isolatie Dubbel glas
  • Verwarming Cv ketel
  • C.v.-ketel bouwjaar 2020
  • Voorzieningen Tv kabel
  • Parkeerfaciliteiten Openbaar parkeren
  • Garage Geen garage
Meer kenmerken

In de buurt

Dorpsstraat 583 • 3433 CM • Nieuwegein

      De buurt

      Burgerlijke staat in wijk
      Gehuwd
      Ongehuwd
      Gescheiden
      Verweduwd
      • Gehuwd (42.36%)
      • Ongehuwd (43.37%)
      • Gescheiden (8.21%)
      • Verweduwd (6.05%)
      Leeftijd in wijk
      0 - 15 jaar
      15 - 25 jaar
      25-45 jaar
      45 - 65 jaar
      65+ jaar
      • 0 - 15 jaar (15.85%)
      • 15 - 25 jaar (9.08%)
      • 25 - 45 jaar (24.06%)
      • 45 - 65 jaar (28.53%)
      • 65+ jaar (22.48%)
      Geslacht
      • Mannen (48.99%)
      • Vrouwen (51.01%)
      Gezinnen met kinderen
      0 - 15 jaar
      15 - 25 jaar
      25-45 jaar
      • Met kinderen (33.86%)
      • Zonder kinderen (32.91%)
      • Éénpersoons huishoudens (33.23%)
      Woningen koop / huur
      • Koop (56.00%)
      • Huur (44.00%)
      Aantal inwoners:

      3460

      Schaduwwijzer

      Media

      Plattegronden

      Ander aanbod