Basaltoever 1, Nieuwegein | Beumer

Basaltoever 1

3433 DC, Nieuwegein

Ben je op zoek naar een fijne plek en een sfeervol en instapklaar huis? Dan is deze woning in Vreeswijk precies wat je zoekt! Met een energielabel A, een woonoppervlakte van 91 m² en een zonnige tuin op het oosten is dit een huis waar je je direct thuis voelt. De woning

  • 91 m2
  • 135 m2
  • Label A
  • 4 kamer(s)

€ 495.000,- k.k. Bereken maandlasten

Bereken maandlasten
Heb je een hypotheek nodig?

Omschrijving

Ben je op zoek naar een fijne plek en een sfeervol en instapklaar huis? Dan is deze woning in Vreeswijk precies wat je zoekt! Met een energielabel A, een woonoppervlakte van 91 m² en een zonnige tuin op het oosten is dit een huis waar je je direct thuis voelt. De woning beschikt over drie slaapkamers, een praktische indeling en een eigen parkeerplaats in de parkeergarage. De buurt biedt alle voorzieningen die je nodig hebt: scholen, speeltuinen, winkels en een goede verbinding met het openbaar vervoer en de uitvalswegen. Ideaal voor jonge gezinnen!

Pluspunten van de woning:
- Eigen…

Ben je op zoek naar een fijne plek en een sfeervol en instapklaar huis? Dan is deze woning in Vreeswijk precies wat je zoekt! Met een energielabel A, een woonoppervlakte van 91 m² en een zonnige tuin op het oosten is dit een huis waar je je direct thuis voelt. De woning beschikt over drie slaapkamers, een praktische indeling en een eigen parkeerplaats in de parkeergarage. De buurt biedt alle voorzieningen die je nodig hebt: scholen, speeltuinen, winkels en een goede verbinding met het openbaar vervoer en de uitvalswegen. Ideaal voor jonge gezinnen!

Pluspunten van de woning:
- Eigen parkeerplaats in een afgesloten parkeergarage, altijd handig en veilig.  
- Voorzien van zonnepanelen en dus energiezuinig wonen met energielabel A, klaar voor de toekomst.  
- Woonkamer van 21 m² met veel lichtinval en zicht op de tuin.  
- Onderhoudsvriendelijke tuin op het oosten, perfect voor de ochtendzon met prachtige overkapping.
- Drie ruime slaapkamers verdeeld over de verdiepingen.
- Gelegen in een rustige straat met veel voorzieningen in de buurt.  

Praktische en sfeervolle woning in Vreeswijk:
Dit woonhuis is ideaal voor gezinnen die op zoek zijn naar een fijne en praktische plek om te wonen. Met een energielabel A is de woning toekomstgericht en energiezuinig. De totale woonoppervlakte van 91 m² is slim benut en kent een praktische indeling.  

Bij binnenkomst valt meteen de nette afwerking op. De woonkamer meet 21 m² en voelt dankzij de grote raampartijen extra ruim en licht aan. Hier kijk je uit over de riante onderhoudsvriendelijke tuin op het oosten, waar je de hele dag kan genieten van de zon. De tuin is voorzien van moderne en fijne overkapping waar je in het voorjaar al heerlijk van de zon kunt genieten. De keuken is voorzien van moderne apparatuur en biedt alles wat je nodig hebt om een heerlijke maaltijd te bereiden.  

De woning beschikt over drie slaapkamers, verdeeld over twee verdiepingen. Hierdoor is er genoeg ruimte het hele gezin. De badkamer is sfeervol ingericht en voorzien van een douche, wastafel en toilet. Zoals gezegd behoort een eigen parkeerplaats tot de woning, gelegen in een afgesloten parkeergarage. Nooit meer zoeken naar een parkeerplek na een drukke dag!

Kortom, deze woning biedt alles wat je nodig hebt voor comfortabel wonen in een prettige omgeving.

Indeling per woonlaag:
- Begane grond:
De entree/hal, biedt toegang tot de keuken, die in directe verbinding staat met de lichte woonkamer. Vanuit de woonkamer is achtertuin te bereiken en de tussenhal met toilet en trapopgang. De achtertuin beschikt over een moderne overkapping, twee houten bergingen en een achterom.

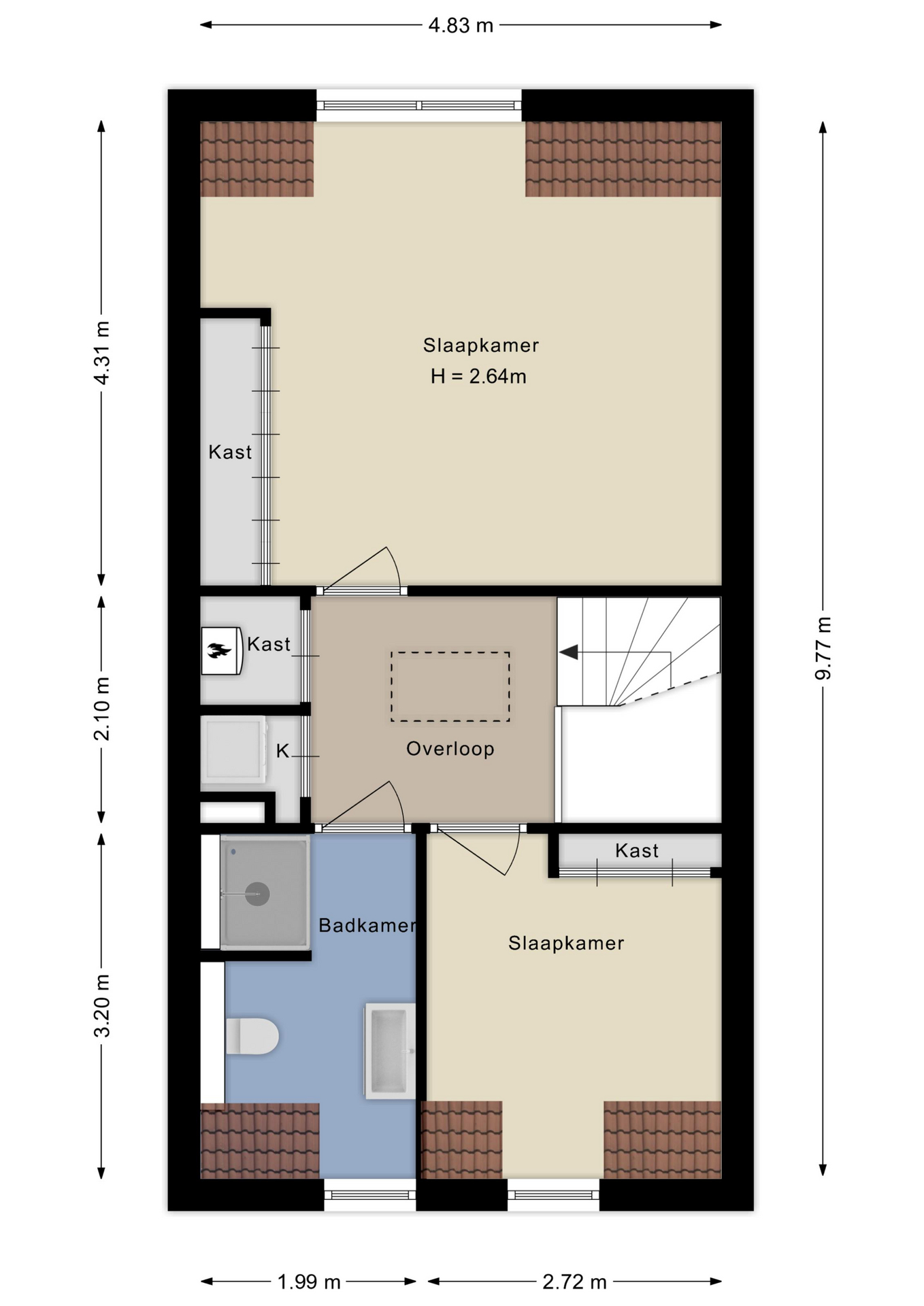
- Eerste verdieping:
Via de overloop zijn een tweetal ruime slaapkamers te bereiken, alsmede de moderne badkamer met douche, wastafel en toilet. Tevens is er voldoende kastruimte voor de wasmachine en droger en de cv-ketel.

- Tweede verdieping:
Hier bevinden zich de derde slaapkamer bereikbaar via een elektrische vlizotrap en een handige bergruimte.

Over de buurt
De woning ligt in het sfeervolle Vreeswijk, een gewilde en kindvriendelijke wijk in Nieuwegein. De buurt staat bekend om zijn dorpse karakter, gezellige straten en uitgebreide voorzieningen. Alles wat je nodig hebt ligt binnen handbereik: meerdere scholen, sportfaciliteiten, winkels en horeca zijn op loop- of fietsafstand bereikbaar. Daarnaast liggen belangrijke uitvalswegen in de directe omgeving, waardoor je ook snel naar omliggende steden rijdt. Voor ontspanning kun je terecht bij één van de nabijgelegen parken of langs de Lek, waar je heerlijk kunt wandelen of fietsen. Kinderen? Die vermaken zich prima in de speeltuinen of op de sportvelden in de buurt.  

Bijzonderheden van de woning:
1. Energielabel A: energiezuinig en toekomstgericht.  
2. Eigen parkeerplaats in een afgesloten parkeergarage, de VvE bijdrage voor de parkeergarage bedraagt €54,- per kwartaal.  
3. Woonoppervlakte van 91 m² met een praktische indeling.
4. Drie slaapkamers, ideaal voor verschillende huishoudens.
5. Rustige ligging in een kindvriendelijke buurt.  
6. Onderhoudsvriendelijke tuin op het oosten.  
7. Moderne keuken en nette afwerking.  
8. Woonkamer met veel lichtinval en mooi uitzicht op de tuin.  
9. Veel voorzieningen, zoals scholen en winkels, in de directe omgeving.  
10. Goede bereikbaarheid via openbare en eigen vervoer.  
 
Neem je NVM-makelaar mee naar de bezichtiging. Zeker weten dat je deze woning kunt betalen? Beumer Hypotheken kijkt graag met je mee!

Lees verder

Kenmerken

  • Vraagprijs € 495.000,- k.k.
  • Aanvaarding In overleg
  • Type Eindwoning
  • Bouwjaar 2005
  • Woonoppervlakte ca. 91 m2
  • Overige inpandige ruimte ca. 13 m2
  • Externe bergruimte ca. 8 m2
  • Slaapkamers 3
  • Inhoud ca. 379 m3
  • Perceeloppervlakte ca. 135 m2
  • Ligging tuin Oost
  • Energielabel A
  • Isolatie Volledig geisoleerd
  • Verwarming Cv ketel, warmte terugwininstallatie
  • C.v.-ketel bouwjaar 2005
  • Voorzieningen Dakraam, glasvezel kabel, zonnepanelen
  • Parkeerfaciliteiten Openbaar parkeren, parkeergarage
  • Garage Parkeerplaats
Meer kenmerken

In de buurt

Basaltoever 1 3433 DC Nieuwegein

      De buurt

      Leeftijd in wijk
      0 - 15 jaar
      15 - 25 jaar
      25-45 jaar
      45 - 65 jaar
      65+ jaar
      • 0 - 15 jaar (16.15%)
      • 15 - 25 jaar (9.77%)
      • 25 - 45 jaar (25.50%)
      • 45 - 65 jaar (28.33%)
      • 65+ jaar (20.25%)
      Geslacht
      • Mannen (49.22%)
      • Vrouwen (50.78%)
      Gezinnen met kinderen
      0 - 15 jaar
      15 - 25 jaar
      25-45 jaar
      • Met kinderen (35.03%)
      • Zonder kinderen (33.44%)
      • Éénpersoons huishoudens (31.53%)
      Aantal inwoners:

      3525

      Schaduwwijzer

      Media

      Plattegronden

      Ander aanbod