Barteldsgaarde 15, Nieuwegein | Beumer

Barteldsgaarde 15

3436 RK, Nieuwegein

Deze ruime eengezinswoning is gelegen op een mooie locatie in de groene en kindvriendelijke woonwijk Batau-Zuid. De woning is onder andere voorzien van een moderne badkamer, luxe toilet, riante achtertuin op het westen, vier slaapkamers en veel bergruimte. De woning is

  • 123 m2
  • 170 m2
  • Label C
  • 5 kamer(s)

€ 400.000,- k.k. Bereken maandlasten

Bereken maandlasten
Heb je een hypotheek nodig?

Omschrijving

Deze ruime eengezinswoning is gelegen op een mooie locatie in de groene en kindvriendelijke woonwijk Batau-Zuid. De woning is onder andere voorzien van een moderne badkamer, luxe toilet, riante achtertuin op het westen, vier slaapkamers en veel bergruimte.
De woning is gebouwd in 1976, beschikt over een woonoppervlakte van ca. 123 m2, perceeloppervlakte van 170 m2, wordt verwarmd middels een CV-ketel en is voorzien van energielabel C.
In de directe omgeving bevinden zich vele voorzieningen, waaronder stadscentrum Nieuwegein, winkelcentrum Muntplein, scholen, restaurants, openbaar vervoer (bus en tram) en de uitvalswegen A2/A12/A27. De dichtstbijzijnde bushalte bevindt zich op ca.…

Deze ruime eengezinswoning is gelegen op een mooie locatie in de groene en kindvriendelijke woonwijk Batau-Zuid. De woning is onder andere voorzien van een moderne badkamer, luxe toilet, riante achtertuin op het westen, vier slaapkamers en veel bergruimte.
De woning is gebouwd in 1976, beschikt over een woonoppervlakte van ca. 123 m2, perceeloppervlakte van 170 m2, wordt verwarmd middels een CV-ketel en is voorzien van energielabel C.
In de directe omgeving bevinden zich vele voorzieningen, waaronder stadscentrum Nieuwegein, winkelcentrum Muntplein, scholen, restaurants, openbaar vervoer (bus en tram) en de uitvalswegen A2/A12/A27. De dichtstbijzijnde bushalte bevindt zich op ca. 1 minuut loopafstand en de tramhalte op ca. 10 minuten. Utrecht binnenstad is hierdoor binnen 20 minuten te bereiken. De dichtstbijzijnde supermarkt is gelegen op ca. 5 minuten loopafstand.

Indeling:
Begane grond:
De hal/entree biedt toegang tot de ruime woonkamer, neutrale keuken, het moderne toilet met fontein, de meterkast en trapopgang naar de eerste verdieping. De woonkamer met mooie houten vloer en trapkast biedt toegang tot de open inbouwkeuken, alsmede de riante achtertuin op het westen. In de tuin, van maar liefst 89 m2, kan optimaal genoten worden van de zon en privacy. Deze is tevens voorzien van bestrating en veel groen.

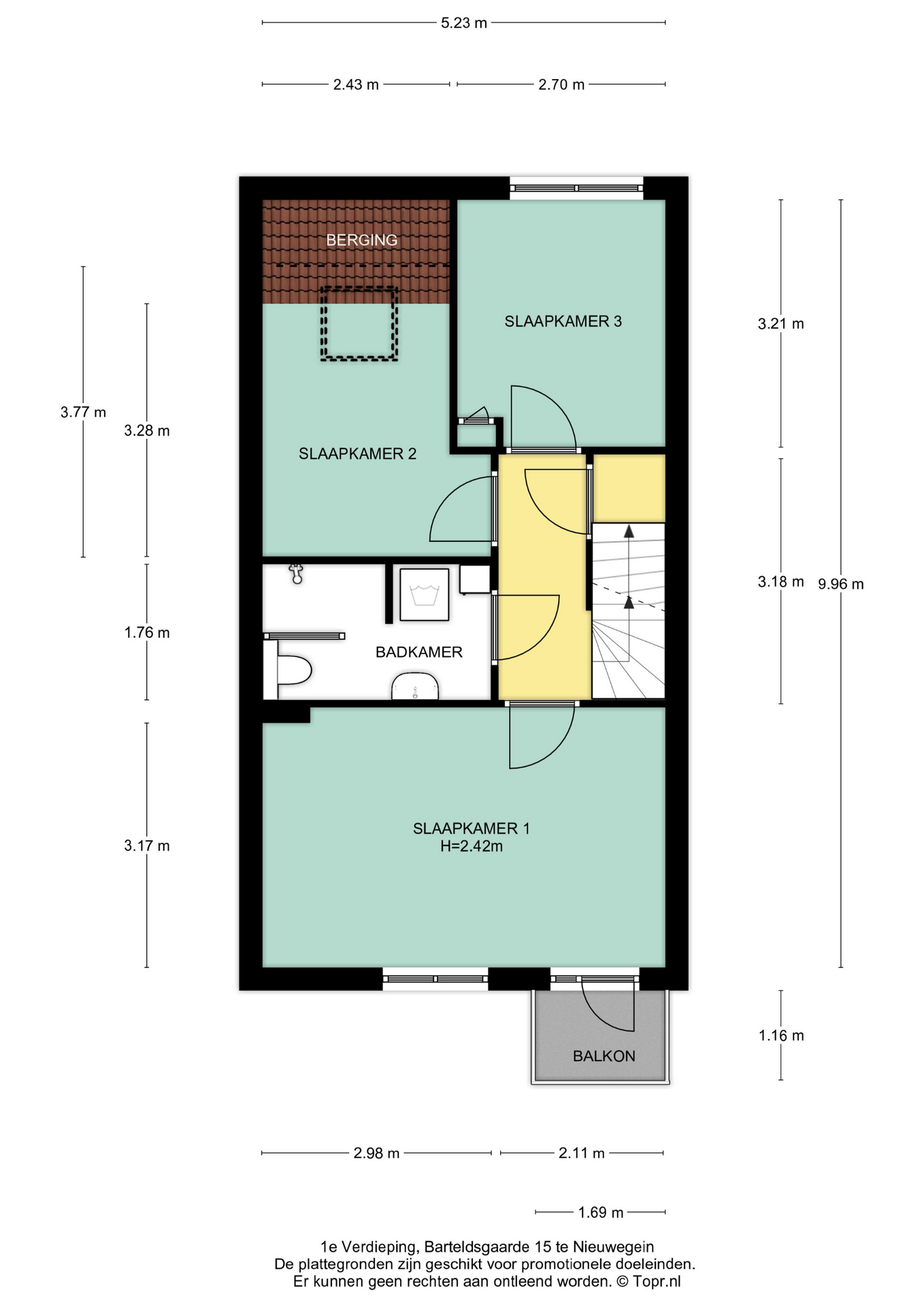
Eerste verdieping:
Via de overloop zijn een drietal goed bemeten slaapkamers te bereiken van ca. 16,5 m2, 8 m2 en 8,5 m2, alsmede de moderne badkamer met douche, wastafelmeubel, toilet en wasmachine-aansluiting. De slaapkamer aan de voorzijde beschikt daarnaast over een balkon op het oosten.

Tweede verdieping:
De overloop met cv-ketel en knieschotten, biedt toegang tot vierde slaapkamer. Deze slaapkamer is ca. 15 m2 groot en is voorzien van een dakkapel en veel bergruimte.

Bijzonderheden:
- Woonoppervlakte: 123 m2;
- Perceeloppervlakte: 170 m2;
- Bouwjaar: 1976;
- Riante achtertuin op het westen;
- Moderne badkamer en toilet;
- Energielabel: C;
- Vier ruime slaapkamers;
- Gunstig gelegen, nabij vele voorzieningen;
- Balkon op het oosten;
- In de koopovereenkomst zal een niet-zelfbewoningsclausule opgenomen worden;
- Oplevering in overleg, kan snel.

Interesse in deze woning? Kom gerust eens langs met je aankoopmakelaar!

Lees verder

Kenmerken

  • Vraagprijs € 400.000,- k.k.
  • Aanvaarding In overleg
  • Type Tussenwoning
  • Bouwjaar 1976
  • Woonoppervlakte ca. 123 m2
  • Oppervlakte gebouwgebonden ca. 2 m2
  • Overige inpandige ruimte ca. 5 m2
  • Slaapkamers 4
  • Inhoud ca. 440 m3
  • Perceeloppervlakte ca. 170 m2
  • Ligging tuin West
  • Energielabel C
  • Isolatie Dubbel glas
  • Verwarming Cv ketel
  • Voorzieningen Mechanische ventilatie, tv kabel, dakraam
  • Parkeerfaciliteiten Openbaar parkeren
  • Garage Geen garage
Meer kenmerken

In de buurt

Barteldsgaarde 15 • 3436 RK • Nieuwegein

      De buurt

      Burgerlijke staat in wijk
      Gehuwd
      Ongehuwd
      Gescheiden
      Verweduwd
      • Gehuwd (41.85%)
      • Ongehuwd (47.44%)
      • Gescheiden (7.80%)
      • Verweduwd (2.91%)
      Leeftijd in wijk
      0 - 15 jaar
      15 - 25 jaar
      25-45 jaar
      45 - 65 jaar
      65+ jaar
      • 0 - 15 jaar (18.44%)
      • 15 - 25 jaar (12.17%)
      • 25 - 45 jaar (25.40%)
      • 45 - 65 jaar (29.99%)
      • 65+ jaar (14.00%)
      Geslacht
      • Mannen (50.31%)
      • Vrouwen (49.69%)
      Gezinnen met kinderen
      0 - 15 jaar
      15 - 25 jaar
      25-45 jaar
      • Met kinderen (41.33%)
      • Zonder kinderen (29.70%)
      • Éénpersoons huishoudens (28.97%)
      Woningen koop / huur
      • Koop (68.00%)
      • Huur (32.00%)
      Aantal inwoners:

      6520

      Schaduwwijzer

      Media

      Plattegronden

      Ander aanbod